- HOME
- マンションギャラリー一覧
- コスモ本駒込
コスモ本駒込
【 マンション 】【仲介手数料無料】2025年4月リノベーション完成予定
| 最寄駅 | 所在地 | 間取り | 面積 | 築年月 |
|---|---|---|---|---|
山手線・駒込駅 徒歩 6分 | 東京都文京区本駒込5-31-5 | 3 LDK | 63.31㎡ | 1999年02月 |
この物件の募集は終了しています
2025年4月にリノベーション完成予定、南東向き、角部屋、二面採光の3LDKは3口ガスのカウンターキッチンや追い炊き、浴室乾燥機、独宇率洗面台等の設備が充実。初期費用のクレジットカード決済が可能です。
物件写真・間取り
物件概要
| 物件名 | コスモ本駒込 |
|---|
| 交通機関 | 山手線・駒込駅 徒歩 6分 三田線・千石駅 徒歩 15分 京浜東北線・田端駅 徒歩 18分 |
|---|
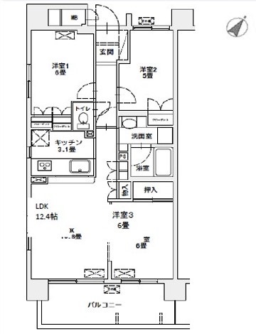
| 間取り詳細 | LDK:12.4畳 洋室:6畳、6畳、5畳 |
|---|
| 建物構造 | SRC |
|---|
| 所在階 / 階数 | 4階/14階建 |
|---|
| 主要採光面 | 南東側 |
|---|
| 契約期間 | 2年 |
|---|
| 引渡 | 相談 |
|---|
| 現況 | 空 |
|---|
| 設備・条件 | 分譲賃貸/エレベーター/宅配ボックス/敷地内ごみ置き場/駐輪場/東南向き/角住戸/2面採光/オートロック/防犯カメラ/LDK15畳以上/システムキッチン/対面式キッチン/ガスレンジ付/3口以上コンロ/グリル付/都市ガス/バストイレ別/オートバス/追焚機能浴室/温水洗浄便座/洗面所独立/24時間換気システム/バルコニー/南面バルコニー/フローリング/全居室フローリング/室内洗濯置/クロゼット/シューズボックス/TVインターホン/リノベーション/仲介手数料不要/保証人不要/初期費用カード決済可/エアコン/通風良好 |
|---|
| 取引態様 | 媒介 |
|---|
| 情報登録日 | 2025年04月04日 |
|---|
| 情報更新日 | 2025年04月04日 |
|---|






