- HOME
- マンションギャラリー一覧
- セジョリ東大前
セジョリ東大前
【 マンション 】【仲介手数料0.55ヶ月】初期費用のクレジットカード決済可能
| 最寄駅 | 所在地 | 間取り | 面積 | 築年月 |
|---|---|---|---|---|
南北線・東大前駅 徒歩 2分 | 東京都文京区向丘1-13-9 | 1 LDK | 41.38㎡ | 2015年07月 |
この物件の募集は終了しています
ペットの飼育が可能な白基調の1LDKはクローゼットが複数あり収納豊富。グリル付きの3口システムキッチンや追い炊き、浴室換気乾燥機、独立洗面台等の室内設備や宅配ボックス、バイク置場等の共用設備も充実。
物件写真・間取り
物件概要
| 物件名 | セジョリ東大前 |
|---|
| 交通機関 | 南北線・東大前駅 徒歩 2分 三田線・白山駅 徒歩 9分 千代田線・根津駅 徒歩 12分 |
|---|
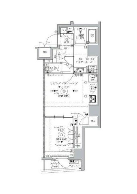
| 間取り詳細 | LDK:8畳 洋室:4.8畳 |
|---|
| 建物構造 | RC |
|---|
| 所在階 / 階数 | 10階/13階建 |
|---|
| 主要採光面 | 東側 |
|---|
| 契約期間 | 2年 |
|---|
| 引渡 | 相談 |
|---|
| 現況 | 居住中 |
|---|
| 設備・条件 | デザイナーズ/外壁タイル張り/高層階/エレベーター/24時間ゴミ出し可/宅配ボックス/敷地内ごみ置き場/駐輪場/バイク置場/角住戸/オートロック/防犯カメラ/システムキッチン/ガスレンジ付/3口以上コンロ/グリル付/都市ガス/バストイレ別/オートバス/追焚機能浴室/浴室乾燥機/温水洗浄便座/洗面所独立/三面鏡付洗面化粧台/24時間換気システム/バルコニー/フローリング/室内洗濯置/クロゼット/シューズボックス/BS・CS/光ファイバー/TVインターホン/ペット相談/仲手0.55ヶ月/保証人不要/初期費用カード決済可/エアコン |
|---|
| 取引態様 | 媒介 |
|---|
| 情報登録日 | 2025年04月04日 |
|---|
| 情報更新日 | 2025年04月04日 |
|---|




















