- HOME
- マンションギャラリー一覧
- レックス目白プライムシティ
レックス目白プライムシティ
【 マンション 】初期費用のクレジットカード決済可能。分譲デザイナーズ賃貸
| 最寄駅 | 所在地 | 間取り | 面積 | 築年月 |
|---|---|---|---|---|
西武池袋線・椎名町駅 徒歩 7分 | 東京都豊島区目白5-5-5 | 1 R | 35.05㎡ | 2008年03月 |
この物件の募集は終了しています
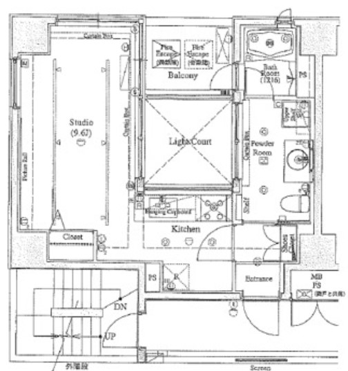
角部屋、複数面採光、ライトコートがある開放的な室内はシステムキッチンや独立洗面台、エアコン等の設備に優れ、宅配ボックスやモニター付オートロック等の共用設備も充実の分譲デザイナーズマンションです。
物件写真・間取り
物件概要
| 物件名 | レックス目白プライムシティ |
|---|
| 交通機関 | 西武池袋線・椎名町駅 徒歩 7分 西武新宿線・下落合駅 徒歩 11分 大江戸線・落合南長崎駅 徒歩 13分 |
|---|
| 建物構造 | SRC |
|---|
| 所在階 / 階数 | 8階/11階建 |
|---|
| 契約期間 | 2年 |
|---|
| 引渡 | 相談 |
|---|
| 現況 | 居住中 |
|---|
| 設備・条件 | デザイナーズ/外壁タイル張り/分譲賃貸/エレベーター/宅配ボックス/敷地内ごみ置き場/角住戸/2面採光/オートロック/防犯カメラ/システムキッチン/ガスレンジ付/都市ガス/バストイレ別/追焚機能浴室/浴室乾燥機/洗面所独立/24時間換気システム/バルコニー/フローリング/室内洗濯置/クロゼット/シューズボックス/TVインターホン/保証人不要/初期費用カード決済可/エアコン/通風良好 |
|---|
| 取引態様 | 媒介 |
|---|
| 情報登録日 | 2025年04月03日 |
|---|
| 情報更新日 | 2025年04月03日 |
|---|

















