- HOME
- マンションギャラリー一覧
- キングハウス巣鴨
キングハウス巣鴨
【 マンション 】【仲介手数料0.55ヶ月】初期費用のクレジットカード決済可能
| 最寄駅 | 所在地 | 間取り | 面積 | 築年月 |
|---|---|---|---|---|
山手線・巣鴨駅 徒歩 10分 | 東京都豊島区巣鴨4-28-9 | 1 DK | 26.62㎡ | 2017年06月 |
この物件の募集は終了しています
浴室テレビや追い炊き、浴室乾燥機付きのお風呂にダイニングに床暖房、グリル付き3口システムキッチン、独立洗面化粧台等の設備に優れた室内は中型犬や猫の飼育が可能、インターネットが無料で楽しめます。
物件写真・間取り
物件概要
| 物件名 | キングハウス巣鴨 |
|---|
| 交通機関 | 山手線・巣鴨駅 徒歩 10分 三田線・西巣鴨駅 徒歩 10分 都電荒川線・庚申塚駅 徒歩 5分 |
|---|
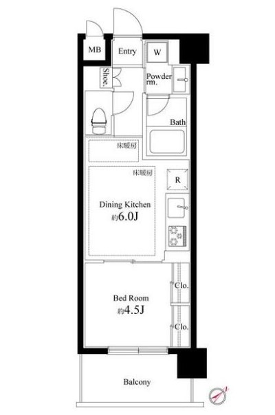
| 間取り詳細 | DK:6畳 洋室:4.5畳 |
|---|
| 建物構造 | RC |
|---|
| 所在階 / 階数 | 4階/4階建 |
|---|
| 主要採光面 | 南東側 |
|---|
| 契約期間 | 2年 |
|---|
| 引渡 | 相談 |
|---|
| 現況 | 居住中 |
|---|
| 設備・条件 | デザイナーズ/外壁タイル張り/最上階/エレベーター/24時間ゴミ出し可/宅配ボックス/敷地内ごみ置き場/駐輪場/東南向き/オートロック/防犯カメラ/全居室洋室/システムキッチン/ガスレンジ付/3口以上コンロ/グリル付/都市ガス/バストイレ別/オートバス/追焚機能浴室/浴室乾燥機/TV付浴室/温水洗浄便座/洗面所独立/洗面化粧台/シャワー付洗面台/24時間換気システム/床暖房/バルコニー/南面バルコニー/フローリング/全居室フローリング/室内洗濯置/クロゼット/クロゼット2ヶ所/シューズボックス/人感照明センサー/BS・CS/BS/CS/ネット使用料不要/TVインターホン/ペット相談/仲手0.55ヶ月/保証人不要/初期費用カード決済可/エアコン |
|---|
| 備考 | 保証金2ヶ月(契約時償却) |
|---|
| 取引態様 | 媒介 |
|---|
| 情報登録日 | 2025年03月28日 |
|---|
| 情報更新日 | 2025年03月28日 |
|---|




















