- HOME
- マンションギャラリー一覧
- ガーラ・グランディ北池袋
ガーラ・グランディ北池袋
【 マンション 】初期費用のクレジットカード決済可能。ペット可の分譲マンション
| 最寄駅 | 所在地 | 間取り | 面積 | 築年月 |
|---|---|---|---|---|
東武東上線・大山駅 徒歩 10分 | 東京都板橋区熊野町24-3 | 2 LDK | 48.6㎡ | 2010年01月 |
この物件の募集は終了しています
角部屋、二面採光の風通しに優れた2LDK。グリル付き3口システムキッチンや追い炊きフルオートバス、浴室乾燥機、三面鏡付洗髪洗面化粧台、シャワートイレ等の設備が充実したペットの飼育が可能な分譲マンション
物件写真・間取り
物件概要
| 物件名 | ガーラ・グランディ北池袋 |
|---|
| 交通機関 | 東武東上線・大山駅 徒歩 10分 三田線・板橋区役所前駅 徒歩 13分 山手線・池袋駅 徒歩 21分 |
|---|
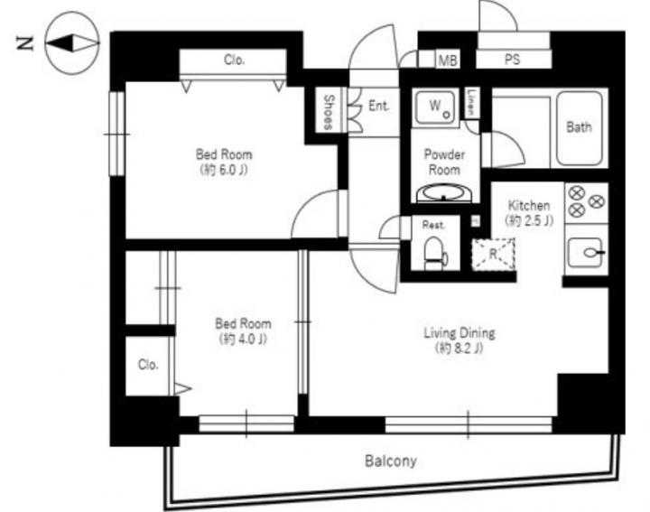
| 間取り詳細 | LDK:10.7畳 洋室:6畳、4畳 |
|---|
| 建物構造 | RC |
|---|
| 所在階 / 階数 | 3階/12階建 |
|---|
| 主要採光面 | 西側 |
|---|
| 契約期間 | 2年 |
|---|
| 引渡 | 相談 |
|---|
| 現況 | 居住中 |
|---|
| 設備・条件 | 分譲賃貸/エレベーター/24時間ゴミ出し可/宅配ボックス/敷地内ごみ置き場/平面駐車場/駐輪場/角住戸/2面採光/オートロック/防犯カメラ/24時間緊急通報システム/システムキッチン/ガスレンジ付/3口以上コンロ/グリル付/都市ガス/バストイレ別/オートバス/追焚機能浴室/浴室乾燥機/洗面所独立/三面鏡付洗面化粧台/シャワー付洗面台/24時間換気システム/バルコニー/フローリング/全居室フローリング/室内洗濯置/クロゼット/シューズボックス/BS・CS/CATV/光ファイバー/TVインターホン/ペット相談/保証人不要/初期費用カード決済可/エアコン/眺望良好/通風良好 |
|---|
| 取引態様 | 媒介 |
|---|
| 情報登録日 | 2025年03月19日 |
|---|
| 情報更新日 | 2025年03月19日 |
|---|
















