- HOME
- マンションギャラリー一覧
- ヴェルステージ田端
ヴェルステージ田端
【 マンション 】初期費用のクレジットカード決済可能。バイク置場、駐輪場有
| 最寄駅 | 所在地 | 間取り | 面積 | 築年月 |
|---|---|---|---|---|
山手線・田端駅 徒歩 10分 | 東京都北区田端新町2-24-2 | 1 DK | 30.8㎡ | 2011年02月 |
この物件の募集は終了しています
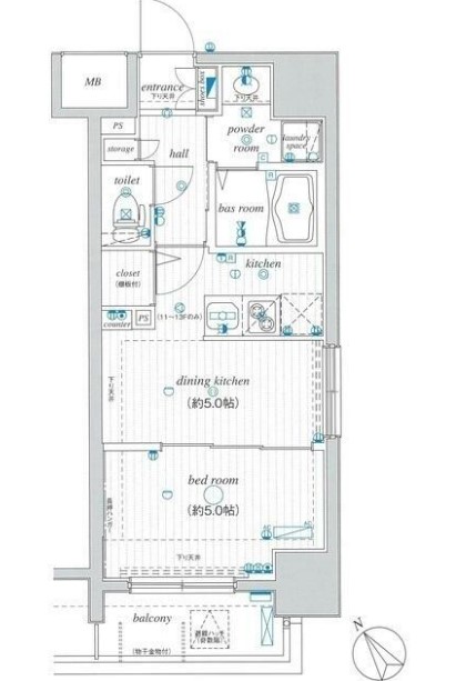
南西向き、角部屋、二面採光の風通しに優れた1DK。システムキッチンや追い炊き、浴室乾燥機、独立洗面台、温水洗浄便座等の室内設備や宅配ボックス、24時間利用の敷地内ゴミ置場、バイク置場等の共用設備が充実
物件写真・間取り
物件概要
| 物件名 | ヴェルステージ田端 |
|---|
| 交通機関 | 山手線・田端駅 徒歩 10分 千代田線・西日暮里駅 徒歩 10分 宇都宮線・尾久駅 徒歩 17分 |
|---|
| 建物構造 | RC |
|---|
| 所在階 / 階数 | 3階/13階建 |
|---|
| 主要採光面 | 南西側 |
|---|
| 契約期間 | 2年 |
|---|
| 引渡 | 相談 |
|---|
| 現況 | 居住中 |
|---|
| 設備・条件 | 分譲賃貸/エレベーター/24時間ゴミ出し可/宅配ボックス/敷地内ごみ置き場/駐輪場/バイク置場/南西向き/角住戸/2面採光/オートロック/防犯カメラ/24時間緊急通報システム/全居室洋室/システムキッチン/ガスレンジ付/2口コンロ/都市ガス/バストイレ別/オートバス/追焚機能浴室/浴室乾燥機/温水洗浄便座/洗面所独立/24時間換気システム/バルコニー/南面バルコニー/フローリング/全居室フローリング/室内洗濯置/クロゼット/シューズボックス/光ファイバー/TVインターホン/保証人不要/初期費用カード決済可/エアコン/通風良好 |
|---|
| 備考 | 保証金総賃料の1ヶ月(償却) |
|---|
| 取引態様 | 媒介 |
|---|
| 情報登録日 | 2025年03月18日 |
|---|
| 情報更新日 | 2025年03月18日 |
|---|
















