- HOME
- マンションギャラリー一覧
- パレステージ文京江戸川橋
パレステージ文京江戸川橋
【 マンション 】初期費用のクレジットカード決済可能。独立洗面台等の設備が充実
| 最寄駅 | 所在地 | 間取り | 面積 | 築年月 |
|---|---|---|---|---|
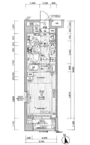
有楽町線・江戸川橋駅 徒歩 7分 | 東京都文京区水道2-4-27 | 1 K | 30.28㎡ | 2017年10月 |
この物件の募集は終了しています
南向き、角部屋、二面採光の風通しに優れた室内はシューズインクローゼットがあり収納豊富。IHシステムキッチンや浴室乾燥機、三面鏡付独立洗面化粧台、手洗い付きタンクレストイレ等の設備が充実してます。
物件写真・間取り
物件概要
| 物件名 | パレステージ文京江戸川橋 |
|---|
| 交通機関 | 有楽町線・江戸川橋駅 徒歩 7分 東西線・神楽坂駅 徒歩 11分 大江戸線・飯田橋駅 徒歩 14分 |
|---|
| 建物構造 | RC |
|---|
| 所在階 / 階数 | 1階/6階建 |
|---|
| 主要採光面 | 南側 |
|---|
| 契約期間 | 2年 |
|---|
| 引渡 | 即入居 |
|---|
| 現況 | 空 |
|---|
| 設備・条件 | 分譲賃貸/エレベーター/24時間ゴミ出し可/宅配ボックス/敷地内ごみ置き場/駐輪場/バイク置場/南向き/角住戸/2面採光/オートロック/ダブルロックキー/ディンプルキー/防犯カメラ/システムキッチン/2口コンロ/IHクッキングヒーター/都市ガス/バストイレ別/オートバス/追焚機能浴室/浴室乾燥機/温水洗浄便座/洗面所独立/洗面化粧台/三面鏡付洗面化粧台/24時間換気システム/エコジョーズ/バルコニー/南面バルコニー/フローリング/室内洗濯置/クロゼット/シューズボックス/シューズWIC/BS・CS/BS/CS/CATV/TVインターホン/保証人不要/初期費用カード決済可/エアコン/通風良好 |
|---|
| 取引態様 | 媒介 |
|---|
| 情報登録日 | 2025年03月09日 |
|---|
| 情報更新日 | 2025年03月09日 |
|---|















