- HOME
- マンションギャラリー一覧
- ゼクシア市谷台
ゼクシア市谷台
【 マンション 】【仲介手数料無料】初期費用のクレジットカード決済が可能です
| 最寄駅 | 所在地 | 間取り | 面積 | 築年月 |
|---|---|---|---|---|
都営新宿線・曙橋駅 徒歩 6分 | 東京都新宿区市谷台町16-1 | 1 R | 31.08㎡ | 2008年01月 |
この物件の募集は終了しています
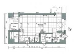
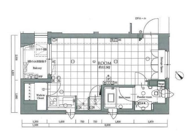
角部屋、二面採光の室内は小型犬、猫の飼育が可能。2口ガスのシステムキッチンや浴室乾燥機、独立洗面台、ウォークインクローゼット等の設備に優れ、宅配ボックスや敷地内ゴミ置場等の共用設備も充実の分譲賃貸
物件写真・間取り
物件概要
| 物件名 | ゼクシア市谷台 |
|---|
| 交通機関 | 都営新宿線・曙橋駅 徒歩 6分 大江戸線・若松河田駅 徒歩 10分 副都心線・東新宿駅 徒歩 15分 |
|---|
| 間取り詳細 | 12.5畳 |
|---|
| 建物構造 | RC |
|---|
| 所在階 / 階数 | 3階/9階建 |
|---|
| 主要採光面 | 北西側 |
|---|
| 契約期間 | 2年 |
|---|
| 引渡 | 即入居 |
|---|
| 現況 | 空 |
|---|
| 設備・条件 | 分譲賃貸/エレベーター/24時間ゴミ出し可/宅配ボックス/敷地内ごみ置き場/駐輪場/角住戸/2面採光/オートロック/防犯カメラ/システムキッチン/ガスレンジ付/2口コンロ/都市ガス/バストイレ別/浴室乾燥機/温水洗浄便座/洗面所独立/24時間換気システム/バルコニー/フローリング/室内洗濯置/クロゼット/ウォークインクロゼット/シューズボックス/BS・CS/光ファイバー/TVインターホン/即入居可/ペット相談/仲介手数料不要/保証人不要/初期費用カード決済可/エアコン/通風良好 |
|---|
| 取引態様 | 媒介 |
|---|
| 情報登録日 | 2025年02月25日 |
|---|
| 情報更新日 | 2025年02月25日 |
|---|














