- HOME
- マンションギャラリー一覧
- 菱和パレス北新宿
菱和パレス北新宿
【 マンション 】初期費用のクレジットカード決済可能。最上階のメゾネット
| 最寄駅 | 所在地 | 間取り | 面積 | 築年月 |
|---|---|---|---|---|
山手線・高田馬場駅 徒歩 7分 | 東京都新宿区高田馬場4-31-5 | 1 LDK | 43.45㎡ | 1997年12月 |
この物件の募集は終了しています
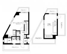
三面バルコニーが広がる最上階、メゾネットタイプの1LDKは2口ガスのシステムキッチンや独立洗面台、エアコン全室等の設備に優れ、宅配ボックスやモニター付オートロック等の共用設備も充実の分譲マンション
物件写真・間取り
物件概要
| 物件名 | 菱和パレス北新宿 |
|---|
| 交通機関 | 山手線・高田馬場駅 徒歩 7分 中央線・大久保駅 徒歩 15分 山手線・新大久保駅 徒歩 16分 |
|---|
| 建物構造 | RC |
|---|
| 所在階 / 階数 | 7-8階/8階建 |
|---|
| 主要採光面 | 南東側 |
|---|
| 契約期間 | 2年 |
|---|
| 引渡 | 相談 |
|---|
| 現況 | 居住中 |
|---|
| 設備・条件 | 分譲賃貸/高層階/最上階/エレベーター/宅配ボックス/敷地内ごみ置き場/駐輪場/南西向き/角住戸/2面採光/3面採光/オートロック/防犯カメラ/メゾネット/システムキッチン/ガスレンジ付/2口コンロ/都市ガス/バストイレ別/洗面所独立/24時間換気システム/バルコニー/2面バルコニー/3面バルコニー/フローリング/全居室フローリング/室内洗濯置/クロゼット/シューズボックス/光ファイバー/TVインターホン/保証人不要/初期費用カード決済可/エアコン/エアコン2台/エアコン全室/眺望良好/通風良好/陽当り良好 |
|---|
| 取引態様 | 媒介 |
|---|
| 情報登録日 | 2025年02月20日 |
|---|
| 情報更新日 | 2025年02月20日 |
|---|






















