- HOME
- マンションギャラリー一覧
- 馬渕マンション
馬渕マンション
【 マンション 】内外装フルリノベーション。初期費用のクレジットカード決済可能
| 最寄駅 | 所在地 | 間取り | 面積 | 築年月 |
|---|---|---|---|---|
山手線・高田馬場駅 徒歩 7分 | 東京都新宿区高田馬場1-10-10 | 1 LDK | 35㎡ | 1975年03月 |
この物件の募集は終了しています
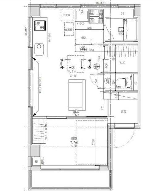
2025年3月内外装リノベーションのマンション。南向き、二面採光の角部屋はIHのシステムキッチンやシャンプードレッサー、温水洗浄便座、エアコン2基等の設備に優れ、ウォークインクローゼットがあり収納豊富
物件写真・間取り
物件概要
| 物件名 | 馬渕マンション |
|---|
| 交通機関 | 山手線・高田馬場駅 徒歩 7分 副都心線・西早稲田駅 徒歩 3分 都電荒川線・面影橋駅 徒歩 14分 |
|---|
| 間取り詳細 | LDK:9.1畳 洋室:4.7畳 |
|---|
| 建物構造 | RC |
|---|
| 所在階 / 階数 | 2階/5階建 |
|---|
| 主要採光面 | 南側 |
|---|
| 契約期間 | 2年 |
|---|
| 引渡 | 即入居 |
|---|
| 現況 | 空 |
|---|
| 設備・条件 | 宅配ボックス/南向き/角住戸/2面採光/ダブルロックキー/ディンプルキー/システムキッチン/2口コンロ/IHクッキングヒーター/グリル付/バストイレ別/温水洗浄便座/洗面所独立/シャワー付洗面台/24時間換気システム/バルコニー/フローリング/全居室フローリング/室内洗濯置/クロゼット/ウォークインクロゼット/シューズボックス/TVインターホン/内装リフォーム済/外装リフォーム済/リノベーション/即入居可/ルームシェア相談/保証人不要/初期費用カード決済可/エアコン/エアコン2台/エアコン全室/通風良好 |
|---|
| 備考 | 敷引:1ヶ月 |
|---|
| 取引態様 | 媒介 |
|---|
| 情報登録日 | 2025年02月16日 |
|---|
| 情報更新日 | 2025年02月16日 |
|---|



















