- HOME
- マンションギャラリー一覧
- シーフォルム駒込Ⅱ
シーフォルム駒込Ⅱ
【 マンション 】初期費用のクレジットカード決済可能。ペットの飼育が可能です
| 最寄駅 | 所在地 | 間取り | 面積 | 築年月 |
|---|---|---|---|---|
山手線・駒込駅 徒歩 10分 | 東京都豊島区駒込6 | 2 K | 27.87㎡ | 2022年12月 |
この物件の募集は終了しています
小型犬、猫の飼育が2匹迄可能な室内はインターネット利用料が無料、2口ガスのシステムキッチン、独立洗面台、温水洗浄便座、エアコン等の室内設備や宅配ボックス、24時間利用可能なゴミ置場等の共用設備も充実
物件写真・間取り
物件概要
| 物件名 | シーフォルム駒込Ⅱ |
|---|
| 交通機関 | 山手線・駒込駅 徒歩 10分 三田線・巣鴨駅 徒歩 14分 京浜東北線・上中里駅 徒歩 12分 |
|---|
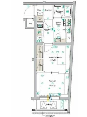
| 間取り詳細 | 洋室:4畳、4.3畳 |
|---|
| 建物構造 | RC |
|---|
| 所在階 / 階数 | 2階/5階建 |
|---|
| 主要採光面 | 南西側 |
|---|
| 契約期間 | 2年 |
|---|
| 引渡 | 相談 |
|---|
| 現況 | 居住中 |
|---|
| 設備・条件 | 分譲賃貸/エレベーター/24時間ゴミ出し可/宅配ボックス/敷地内ごみ置き場/駐輪場/オートロック/ダブルロックキー/ディンプルキー/防犯カメラ/システムキッチン/ガスレンジ付/2口コンロ/都市ガス/バストイレ別/浴室乾燥機/温水洗浄便座/洗面所独立/24時間換気システム/バルコニー/フローリング/全居室フローリング/室内洗濯置/クロゼット/シューズボックス/ネット使用料不要/TVインターホン/ペット相談/保証人不要/初期費用カード決済可/エアコン |
|---|
| 取引態様 | 媒介 |
|---|
| 情報登録日 | 2025年02月11日 |
|---|
| 情報更新日 | 2025年02月11日 |
|---|


















