- HOME
- マンションギャラリー一覧
- ブランノワール
ブランノワール
【 マンション 】【仲介手数料無料】初期費用のクレジットカード決済が可能です
| 最寄駅 | 所在地 | 間取り | 面積 | 築年月 |
|---|---|---|---|---|
山手線・田端駅 徒歩 8分 | 東京都北区東田端2-16-11 | 1 LDK | 35.32㎡ | 2014年03月 |
この物件の募集は終了しています
最上階、南向き、角部屋、二面採光の風通しに優れた1LDKは2口ガスのシステムキッチンや追い炊き、浴室乾燥機付きのお風呂、温水洗浄便座、シャンプードレッサー等の設備が整い、インターネット利用料が無料
物件写真・間取り
物件概要
| 物件名 | ブランノワール |
|---|
| 交通機関 | 山手線・田端駅 徒歩 8分 高崎線・尾久駅 徒歩 13分 日暮里舎人ライナー・赤土小学校前駅 徒歩 14分 |
|---|
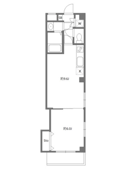
| 間取り詳細 | LDK:9.6畳 洋室:6畳 |
|---|
| 建物構造 | 鉄骨造 |
|---|
| 所在階 / 階数 | 4階/4階建 |
|---|
| 主要採光面 | 南側 |
|---|
| 契約期間 | 2年 |
|---|
| 引渡 | 相談 |
|---|
| 現況 | 居住中 |
|---|
| 設備・条件 | 最上階/駐輪場/南向き/角住戸/2面採光/オートロック/防犯カメラ/システムキッチン/ガスレンジ付/2口コンロ/バストイレ別/オートバス/追焚機能浴室/浴室乾燥機/温水洗浄便座/洗面所独立/シャワー付洗面台/24時間換気システム/バルコニー/南面バルコニー/フローリング/全居室フローリング/室内洗濯置/クロゼット/シューズボックス/ネット使用料不要/TVインターホン/仲介手数料不要/保証人不要/初期費用カード決済可/エアコン/通風良好 |
|---|
| 取引態様 | 媒介 |
|---|
| 情報登録日 | 2025年02月07日 |
|---|
| 情報更新日 | 2025年02月07日 |
|---|




















