- HOME
- マンションギャラリー一覧
- 新宿夏目坂コート
新宿夏目坂コート
【 マンション 】初期費用のクレジットカード決済可能。独立洗面台等の設備が充実
| 最寄駅 | 所在地 | 間取り | 面積 | 築年月 |
|---|---|---|---|---|
大江戸線・牛込柳町駅 徒歩 7分 | 東京都新宿区喜久井町34 | 1 K | 27.39㎡ | 2020年07月 |
この物件の募集は終了しています
最上階、ルーフバルコニーが広がる角部屋は浴室乾燥機や独立洗面化粧台、2口システムキッチン、温水洗浄便座等の設備に優れ、無料で利用可能な駐輪場や宅配ボックス、24時間利用可能なゴミ置場等の共用設備も充実
物件写真・間取り
物件概要
| 物件名 | 新宿夏目坂コート |
|---|
| 交通機関 | 大江戸線・牛込柳町駅 徒歩 7分 東西線・早稲田駅 徒歩 9分 東西線・神楽坂駅 徒歩 13分 |
|---|
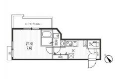
| 間取り詳細 | 7.6畳 |
|---|
| 建物構造 | RC |
|---|
| 所在階 / 階数 | 4階/4階建 |
|---|
| 主要採光面 | 北東側 |
|---|
| 契約期間 | 2年 |
|---|
| 引渡 | 相談 |
|---|
| 現況 | 居住中 |
|---|
| 設備・条件 | 最上階/エレベーター/24時間ゴミ出し可/宅配ボックス/敷地内ごみ置き場/駐輪場/角住戸/2面採光/オートロック/ディンプルキー/防犯カメラ/システムキッチン/ガスレンジ付/2口コンロ/都市ガス/バストイレ別/浴室乾燥機/温水洗浄便座/洗面所独立/24時間換気システム/バルコニー/ルーフバルコニー/フローリング/室内洗濯置/クロゼット/シューズボックス/BS・CS/光ファイバー/TVインターホン/保証人不要/初期費用カード決済可/エアコン |
|---|
| 取引態様 | 媒介 |
|---|
| 情報登録日 | 2025年02月03日 |
|---|
| 情報更新日 | 2025年02月03日 |
|---|




















