- HOME
- マンションギャラリー一覧
- ミハス目白
ミハス目白
【 マンション 】【仲介手数料0.55ヶ月】インターネット利用料が無料です
| 最寄駅 | 所在地 | 間取り | 面積 | 築年月 |
|---|---|---|---|---|
山手線・池袋駅 徒歩 9分 | 東京都豊島区目白2-27-19 | 1 LDK | 41.4㎡ | 2020年02月 |
この物件の募集は終了しています
南向き、角部屋、二面採光の1LDKはインターネットが無料で楽しめます。カウンターキッチンや追い炊き、浴室乾燥機、独立洗面台、シャワートイレ等の設備に優れ、ウォークインクローゼットがあり収納豊富です。
物件写真・間取り
物件概要
| 物件名 | ミハス目白 |
|---|
| 交通機関 | 山手線・池袋駅 徒歩 9分 山手線・目白駅 徒歩 7分 副都心線・雑司が谷駅 徒歩 9分 |
|---|
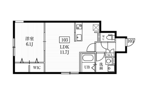
| 間取り詳細 | LDK:11.7畳 洋室:6.1畳 |
|---|
| 建物構造 | 鉄骨造 |
|---|
| 所在階 / 階数 | 1階/3階建 |
|---|
| 主要採光面 | 南側 |
|---|
| 契約期間 | 2年 |
|---|
| 引渡 | 相談 |
|---|
| 現況 | 居住中 |
|---|
| 設備・条件 | 宅配ボックス/南向き/角住戸/2面採光/ダブルロックキー/防犯カメラ/システムキッチン/対面式キッチン/ガスレンジ付/2口コンロ/バストイレ別/オートバス/追焚機能浴室/浴室乾燥機/温水洗浄便座/洗面所独立/24時間換気システム/フローリング/全居室フローリング/室内洗濯置/クロゼット/ウォークインクロゼット/シューズボックス/BS・CS/ネット使用料不要/TVインターホン/仲手0.55ヶ月/保証人不要/初期費用カード決済可/エアコン/通風良好 |
|---|
| 取引態様 | 媒介 |
|---|
| 情報登録日 | 2025年02月01日 |
|---|
| 情報更新日 | 2025年02月01日 |
|---|












