- HOME
- マンションギャラリー一覧
- リヴァプール東池袋
リヴァプール東池袋
【 マンション 】【仲介手数料0.55ヶ月】初期費用のクレジットカード決済可能
| 最寄駅 | 所在地 | 間取り | 面積 | 築年月 |
|---|---|---|---|---|
山手線・大塚駅 徒歩 6分 | 東京都豊島区東池袋2-11-1 | 1 LDK | 30.28㎡ | 2016年06月 |
この物件の募集は終了しています
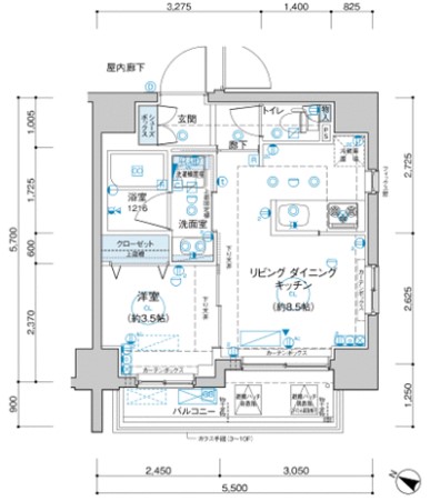
南西向き、角部屋、二面採光の1LDKは追い炊きや浴室乾燥機付きのお風呂や三面鏡付独立洗面化粧台、グリル付き3口カウンターキッチン、温水洗浄便座等の設備に優れ、宅配ボックスやゴミ置場等の共用設備も充実
物件写真・間取り
物件概要
| 物件名 | リヴァプール東池袋 |
|---|
| 交通機関 | 山手線・大塚駅 徒歩 6分 有楽町線・東池袋駅 徒歩 7分 丸ノ内線・新大塚駅 徒歩 10分 |
|---|
| 間取り詳細 | LDK:8.5畳 洋室:3.5畳 |
|---|
| 建物構造 | RC |
|---|
| 所在階 / 階数 | 3階/10階建 |
|---|
| 主要採光面 | 西側 |
|---|
| 契約期間 | 2年(定期借家) |
|---|
| 引渡 | 相談 |
|---|
| 現況 | 居住中 |
|---|
| 設備・条件 | エレベーター/24時間ゴミ出し可/宅配ボックス/敷地内ごみ置き場/駐輪場/バイク置場/南西向き/角住戸/2面採光/オートロック/ダブルロックキー/ディンプルキー/防犯カメラ/全居室洋室/システムキッチン/対面式キッチン/ガスレンジ付/3口以上コンロ/グリル付/都市ガス/バストイレ別/オートバス/追焚機能浴室/浴室乾燥機/温水洗浄便座/洗面所独立/洗面化粧台/三面鏡付洗面化粧台/シャワー付洗面台/24時間換気システム/バルコニー/フローリング/全居室フローリング/室内洗濯置/クロゼット/シューズボックス/BS・CS/BS/CS/光ファイバー/TVインターホン/仲手0.55ヶ月/保証人不要/初期費用カード決済可/エアコン/通風良好 |
|---|
| 取引態様 | 媒介 |
|---|
| 情報登録日 | 2025年01月27日 |
|---|
| 情報更新日 | 2025年01月27日 |
|---|



















