- HOME
- マンションギャラリー一覧
- ALERO Bunkyo-Hakusan
ALERO Bunkyo-Hakusan
【 マンション 】【仲介手数料無料】初期費用のクレジットカード決済が可能です
| 最寄駅 | 所在地 | 間取り | 面積 | 築年月 |
|---|---|---|---|---|
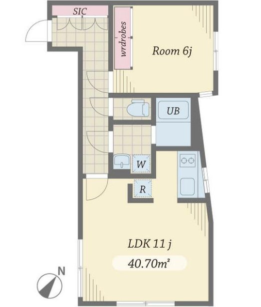
三田線・白山駅 徒歩 7分 | 東京都文京区白山4-36-5 | 1 LDK | 40.7㎡ | 2018年02月 |
この物件の募集は終了しています
南東向き、最上階、複数面採光の角部屋は小型犬、猫の飼育が可能。追い炊きや浴室乾燥機、独立洗面台、2口ガスのシステムキッチン、温水洗浄便座、エアコン2基等の設備に優れたデザイナーズマンションです。
物件写真・間取り
物件概要
| 物件名 | ALERO Bunkyo-Hakusan |
|---|
| 交通機関 | 三田線・白山駅 徒歩 7分 南北線・本駒込駅 徒歩 11分 三田線・千石駅 徒歩 10分 |
|---|
| 間取り詳細 | LDK:11畳 洋室:6畳 |
|---|
| 建物構造 | RC |
|---|
| 所在階 / 階数 | 4階/4階建 |
|---|
| 主要採光面 | 南東側 |
|---|
| 契約期間 | 2年 |
|---|
| 引渡 | 相談 |
|---|
| 現況 | 居住中 |
|---|
| 設備・条件 | デザイナーズ/内装コンクリート/宅配ボックス/東南向き/2面採光/オートロック/防犯カメラ/全居室6畳以上/システムキッチン/ガスレンジ付/2口コンロ/都市ガス/バストイレ別/オートバス/追焚機能浴室/浴室乾燥機/温水洗浄便座/洗面所独立/24時間換気システム/フローリング/全居室フローリング/室内洗濯置/クロゼット/シューズボックス/TVインターホン/ペット相談/仲介手数料不要/保証人不要/初期費用カード決済可/エアコン/エアコン2台/エアコン全室/通風良好 |
|---|
| 備考 | デザイナーズマンション情報が豊富なリガール |
|---|
| 取引態様 | 媒介 |
|---|
| 情報登録日 | 2025年01月21日 |
|---|
| 情報更新日 | 2025年01月21日 |
|---|
























