- HOME
- マンションギャラリー一覧
- ソルナクレイシア池袋
ソルナクレイシア池袋
【 マンション 】仲介手数料、敷金、礼金、インターネット利用料が無料です
| 最寄駅 | 所在地 | 間取り | 面積 | 築年月 |
|---|---|---|---|---|
山手線・池袋駅 徒歩 9分 | 東京都豊島区西池袋4-3-10 | 1 LDK | 46.14㎡ | 2021年05月 |
この物件の募集は終了しています
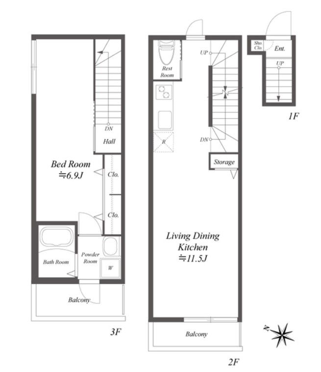
初期費用のクレジットカード決済可能。インターネットが無料で楽しめる南西向き、メゾネットタイプの1LDKはIHの2口システムキッチンや追い炊き、浴室乾燥機、独立洗面化粧台、エアコン2基等の設備が充実。
物件写真・間取り
物件概要
| 物件名 | ソルナクレイシア池袋 |
|---|
| 交通機関 | 山手線・池袋駅 徒歩 9分 西武池袋線・椎名町駅 徒歩 8分 有楽町線・要町駅 徒歩 12分 |
|---|
| 間取り詳細 | LDK:11.5畳 洋室:6.9畳 |
|---|
| 建物構造 | 鉄骨造 |
|---|
| 所在階 / 階数 | 2-3/3階建 |
|---|
| 主要採光面 | 南西側 |
|---|
| 契約期間 | 2年 |
|---|
| 引渡 | 即入居 |
|---|
| 現況 | 空 |
|---|
| 設備・条件 | 最上階/敷地内ごみ置き場/南西向き/メゾネット/システムキッチン/2口コンロ/IHクッキングヒーター/都市ガス/バストイレ別/オートバス/追焚機能浴室/浴室乾燥機/温水洗浄便座/洗面所独立/24時間換気システム/バルコニー/南面バルコニー/フローリング/全居室フローリング/室内洗濯置/クロゼット/シューズボックス/BS・CS/ネット使用料不要/TVインターホン/即入居可/敷金・礼金不要/仲介手数料不要/保証人不要/初期費用カード決済可/エアコン/エアコン2台 |
|---|
| 取引態様 | 媒介 |
|---|
| 情報登録日 | 2025年01月19日 |
|---|
| 情報更新日 | 2025年01月19日 |
|---|





















