- HOME
- マンションギャラリー一覧
- ガーラ・レジデンス池袋
ガーラ・レジデンス池袋
【 マンション 】【仲介手数料0.55ヶ月】初期費用のクレジットカード決済可能
| 最寄駅 | 所在地 | 間取り | 面積 | 築年月 |
|---|---|---|---|---|
山手線・池袋駅 徒歩 8分 | 東京都豊島区上池袋2-14-13 | 2 LDK | 56.3㎡ | 2011年08月 |
この物件の募集は終了しています
南東向き、角部屋、二面採光の風通しに優れた2LDKはペットの飼育が相談可能。グリル付きの3口ガスカウンターキッチンや追い炊き、浴室乾燥機、三面鏡付独立洗面化粧台、温水洗浄便座等の設備が充実してます。
物件写真・間取り
物件概要
| 物件名 | ガーラ・レジデンス池袋 |
|---|
| 交通機関 | 山手線・池袋駅 徒歩 8分 有楽町線・東池袋駅 徒歩 12分 東武東上線・北池袋駅 徒歩 12分 |
|---|
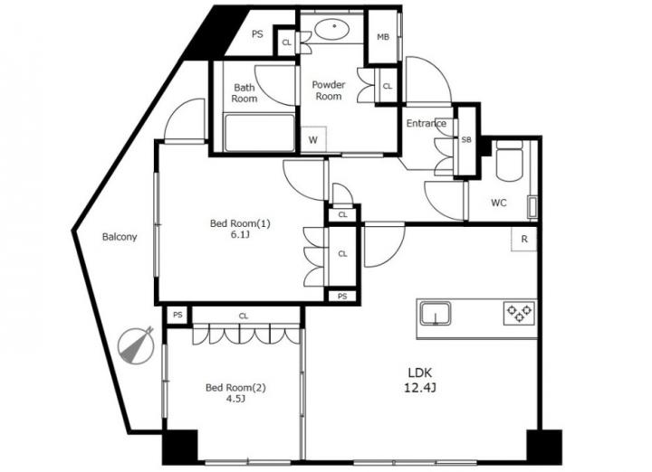
| 間取り詳細 | LDK:12.4畳 洋室:6.1畳、4.5畳 |
|---|
| 建物構造 | RC |
|---|
| 所在階 / 階数 | 9階/12階建 |
|---|
| 主要採光面 | 南東側 |
|---|
| 契約期間 | 2年 |
|---|
| 引渡 | 即入居 |
|---|
| 現況 | 空 |
|---|
| 設備・条件 | 分譲賃貸/エレベーター/24時間ゴミ出し可/宅配ボックス/敷地内ごみ置き場/駐輪場/東南向き/角住戸/2面採光/オートロック/ダブルロックキー/ディンプルキー/防犯カメラ/24時間緊急通報システム/セキュリティ会社加入済/システムキッチン/対面式キッチン/ガスレンジ付/3口以上コンロ/グリル付/都市ガス/バストイレ別/オートバス/追焚機能浴室/浴室乾燥機/温水洗浄便座/洗面所独立/三面鏡付洗面化粧台/シャワー付洗面台/24時間換気システム/バルコニー/南面バルコニー/フローリング/全居室フローリング/室内洗濯置/クロゼット/シューズボックス/BS・CS/光ファイバー/TVインターホン/ペット相談/仲手0.55ヶ月/保証人不要/初期費用カード決済可/エアコン/通風良好 |
|---|
| 取引態様 | 媒介 |
|---|
| 情報登録日 | 2024年12月26日 |
|---|
| 情報更新日 | 2024年12月26日 |
|---|
















