- HOME
- マンションギャラリー一覧
- ハイマート余丁町
ハイマート余丁町
【 一戸建て 】初期費用のクレジットカード決済可能。追い炊き等の設備が充実
| 最寄駅 | 所在地 | 間取り | 面積 | 築年月 |
|---|---|---|---|---|
大江戸線・若松河田駅 徒歩 5分 | 東京都新宿区余丁町11-10 | 1 LDK | 47.2㎡ | 2012年08月 |
この物件の募集は終了しています
南東向き、複数面採光、メゾネットタイプの1LDKはグリル付きの3口ガスカウンターキッチンや追い炊き、浴室乾燥機、独立洗面台、温水洗浄便座、エアコン2基、テレビモニター付きインターフォン等の設備が充実
物件写真・間取り
物件概要
| 物件名 | ハイマート余丁町 |
|---|
| 交通機関 | 大江戸線・若松河田駅 徒歩 5分 副都心線・東新宿駅 徒歩 9分 都営新宿線・曙橋駅 徒歩 12分 |
|---|
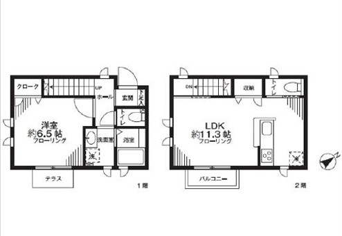
| 間取り詳細 | LDK:11.3畳 洋室:6.5畳 |
|---|
| 建物構造 | 木造 |
|---|
| 所在階 / 階数 | 1-2階/2階建 |
|---|
| 主要採光面 | 南東側 |
|---|
| 契約期間 | 2年 |
|---|
| 引渡 | 即入居 |
|---|
| 現況 | 空 |
|---|
| 設備・条件 | 駐輪場/バイク置場/東南向き/角住戸/2面採光/3面採光/メゾネット/システムキッチン/対面式キッチン/ガスレンジ付/3口以上コンロ/グリル付/都市ガス/バストイレ別/オートバス/追焚機能浴室/浴室乾燥機/温水洗浄便座/洗面所独立/24時間換気システム/バルコニー/テラス/フローリング/全居室フローリング/室内洗濯置/クロゼット/シューズボックス/CATV/TVインターホン/即入居可/保証人不要/初期費用カード決済可/エアコン/エアコン2台/エアコン全室/通風良好/陽当り良好 |
|---|
| 取引態様 | 媒介 |
|---|
| 情報登録日 | 2024年12月17日 |
|---|
| 情報更新日 | 2024年12月17日 |
|---|


















