- HOME
- マンションギャラリー一覧
- エストゥルースプラス田端
エストゥルースプラス田端
【 マンション 】【仲介手数料無料】初期費用のクレジットカード決済が可能です
| 最寄駅 | 所在地 | 間取り | 面積 | 築年月 |
|---|---|---|---|---|
山手線・田端駅 徒歩 7分 | 東京都北区田端新町2-14-9 | 2 LDK | 43.75㎡ | 2023年03月 |
この物件の募集は終了しています
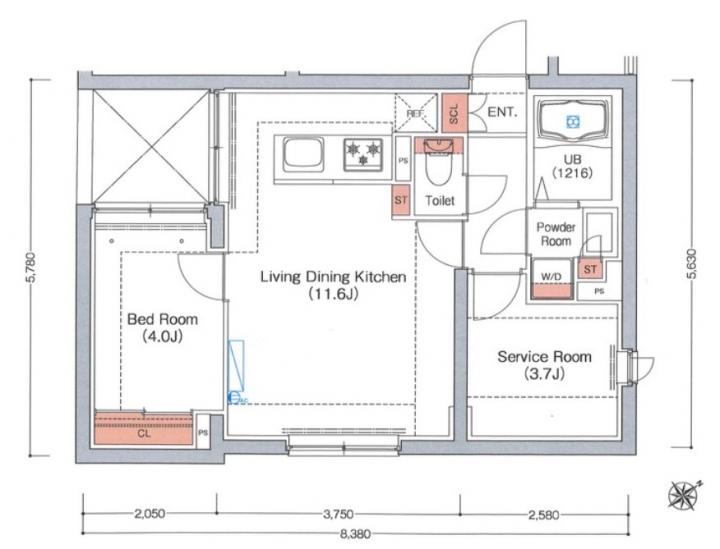
南東向き、3.7畳のサービスルームがある室内はインターネットの利用料が無料。3口ガスのカウンターキッチンや浴室乾燥機、独立洗面台、温水洗浄便座等の設備に優れ、宅配ボックスやゴミ置場等の共用設備も充実
物件写真・間取り
物件概要
| 物件名 | エストゥルースプラス田端 |
|---|
| 交通機関 | 山手線・田端駅 徒歩 7分 千代田線・西日暮里駅 徒歩 14分 京成本線・新三河島駅 徒歩 14分 |
|---|
| 間取り詳細 | LDK:11.6畳 洋室:4畳、3.7畳 |
|---|
| 建物構造 | RC |
|---|
| 所在階 / 階数 | 1階/4階建 |
|---|
| 主要採光面 | 南東側 |
|---|
| 契約期間 | 2年 |
|---|
| 引渡 | 相談 |
|---|
| 現況 | 居住中 |
|---|
| 設備・条件 | 24時間ゴミ出し可/宅配ボックス/敷地内ごみ置き場/2面採光/オートロック/防犯カメラ/システムキッチン/対面式キッチン/ガスレンジ付/3口以上コンロ/グリル付/都市ガス/バストイレ別/浴室乾燥機/温水洗浄便座/洗面所独立/24時間換気システム/フローリング/全居室フローリング/室内洗濯置/クロゼット/シューズボックス/ネット使用料不要/TVインターホン/仲介手数料不要/保証人不要/初期費用カード決済可/エアコン |
|---|
| 取引態様 | 媒介 |
|---|
| 情報登録日 | 2024年11月20日 |
|---|
| 情報更新日 | 2024年11月20日 |
|---|
















