- HOME
- マンションギャラリー一覧
- エルファーロ大塚Ⅱ
エルファーロ大塚Ⅱ
【 マンション 】【仲介手数料無料】初期費用のクレジットカード決済が可能です
| 最寄駅 | 所在地 | 間取り | 面積 | 築年月 |
|---|---|---|---|---|
山手線・大塚駅 徒歩 10分 | 東京都豊島区上池袋1-34-5 | 2 LDK | 45.54㎡ | 2022年07月 |
この物件の募集は終了しています
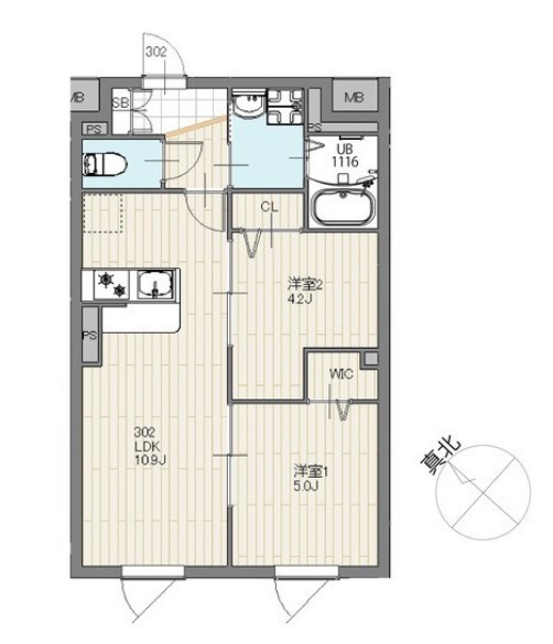
南西向きの2LDKはウォークインクローゼットがあり収納豊富。追い炊きや浴室乾燥機、2口ガスのカウンターキッチン、独立洗面化粧台、温水洗浄便座、エアコン等の設備に優れ、インターネットが無料で利用可能
物件写真・間取り
物件概要
| 物件名 | エルファーロ大塚Ⅱ |
|---|
| 交通機関 | 山手線・大塚駅 徒歩 10分 東武東上線・北池袋駅 徒歩 12分 山手線・池袋駅 徒歩 17分 |
|---|
| 間取り詳細 | LDK:10.9畳 洋室:5畳、4.2畳 |
|---|
| 建物構造 | RC |
|---|
| 所在階 / 階数 | 3階/4階建 |
|---|
| 主要採光面 | 南西側 |
|---|
| 契約期間 | 2年 |
|---|
| 引渡 | 相談 |
|---|
| 現況 | 居住中 |
|---|
| 設備・条件 | 宅配ボックス/敷地内ごみ置き場/南西向き/オートロック/防犯カメラ/システムキッチン/対面式キッチン/ガスレンジ付/2口コンロ/都市ガス/バストイレ別/オートバス/追焚機能浴室/浴室乾燥機/温水洗浄便座/洗面所独立/洗面化粧台/シャワー付洗面台/24時間換気システム/フローリング/全居室フローリング/室内洗濯置/クロゼット/ウォークインクロゼット/シューズボックス/ネット使用料不要/TVインターホン/仲介手数料不要/保証人不要/初期費用カード決済可/エアコン/通風良好 |
|---|
| 取引態様 | 媒介 |
|---|
| 情報登録日 | 2024年11月17日 |
|---|
| 情報更新日 | 2024年11月17日 |
|---|










