- HOME
- マンションギャラリー一覧
- マンション市ヶ谷
マンション市ヶ谷
【 マンション 】2017年リノベーション。初期費用のクレジットカード決済可
| 最寄駅 | 所在地 | 間取り | 面積 | 築年月 |
|---|---|---|---|---|
大江戸線・牛込柳町駅 徒歩 6分 | 東京都新宿区市ヶ谷薬王寺町82 | 3 LDK | 78.9㎡ | 1968年03月 |
この物件の募集は終了しています
2017年7月にフルリノベーションされた3LDKはダイニングテーブル兼用カウンターキッチンや追い炊き、浴室乾燥機、三面鏡付洗髪洗面化粧台、温水洗浄便座、ウォークインクローゼット、琉球畳等の設備が充実
物件写真・間取り
物件概要
| 物件名 | マンション市ヶ谷 |
|---|
| 交通機関 | 大江戸線・牛込柳町駅 徒歩 6分 都営新宿線・曙橋駅 徒歩 8分 有楽町線・市ヶ谷駅 徒歩 13分 |
|---|
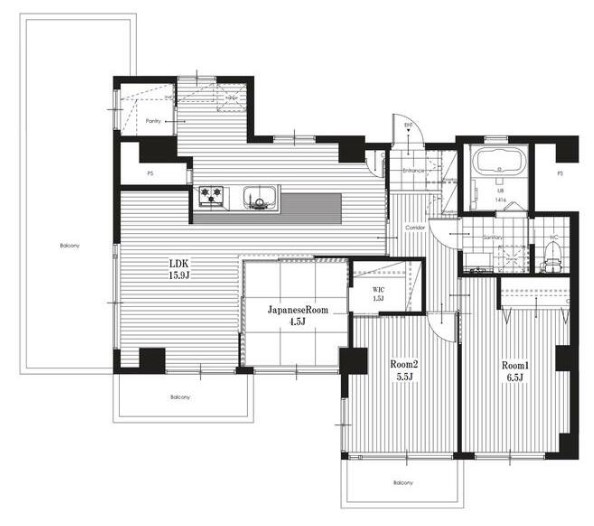
| 間取り詳細 | LDK:15.9畳 洋室:6.5畳、5.5畳 和室:4.5畳 |
|---|
| 建物構造 | SRC |
|---|
| 所在階 / 階数 | 5階/9階建 |
|---|
| 契約期間 | 2年 |
|---|
| 引渡 | 相談 |
|---|
| 現況 | 空 |
|---|
| 設備・条件 | エレベーター/24時間ゴミ出し可/敷地内ごみ置き場/駐輪場/南向き/角住戸/2面採光/3面採光/オートロック/防犯カメラ/LDK15畳以上/システムキッチン/対面式キッチン/ガスレンジ付/3口以上コンロ/グリル付/都市ガス/バストイレ別/オートバス/追焚機能浴室/浴室乾燥機/温水洗浄便座/洗面所独立/三面鏡付洗面化粧台/シャワー付洗面台/24時間換気システム/バルコニー/2面バルコニー/フローリング/琉球畳/室内洗濯置/クロゼット/ウォークインクロゼット/シューズボックス/光ファイバー/TVインターホン/リノベーション/即入居可/保証人不要/初期費用カード決済可/エアコン/通風良好/陽当り良好 |
|---|
| 備考 | リノベーション |
|---|
| 取引態様 | 媒介 |
|---|
| 情報登録日 | 2024年10月24日 |
|---|
| 情報更新日 | 2024年10月24日 |
|---|




















