- HOME
- マンションギャラリー一覧
- SYFORM GAKUSHUINSHITA
SYFORM GAKUSHUINSHITA
【 マンション 】インターネット利用料無料、初期費用のクレジットカード決済可能
| 最寄駅 | 所在地 | 間取り | 面積 | 築年月 |
|---|---|---|---|---|
副都心線・雑司が谷駅 徒歩 6分 | 東京都豊島区高田2 | 1 K | 21.49㎡ | 2014年12月 |
この物件の募集は終了しています
インターネットが無料で利用可能、宅配ボックスや敷地内ゴミ置場等の共用設備に優れた分譲マンション。2口ガスのシステムキッチンや洗髪洗面化粧台、浴室乾燥機、温水洗浄便座、エアコン等の室内設備も充実してます
物件写真・間取り
物件概要
| 物件名 | SYFORM GAKUSHUINSHITA |
|---|
| 交通機関 | 副都心線・雑司が谷駅 徒歩 6分 東西線・高田馬場駅 徒歩 15分 山手線・目白駅 徒歩 15分 |
|---|
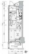
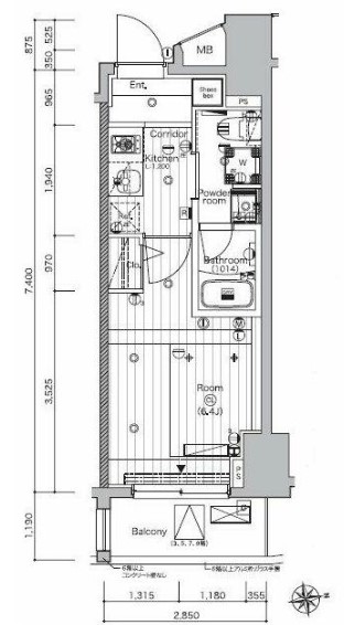
| 間取り詳細 | 6.4畳 |
|---|
| 建物構造 | RC |
|---|
| 所在階 / 階数 | 6階/9階建 |
|---|
| 主要採光面 | 東側 |
|---|
| 契約期間 | 2年 |
|---|
| 引渡 | 相談 |
|---|
| 現況 | 居住中 |
|---|
| 設備・条件 | 分譲賃貸/高層階/エレベーター/24時間ゴミ出し可/宅配ボックス/敷地内ごみ置き場/駐輪場/オートロック/ディンプルキー/防犯カメラ/システムキッチン/ガスレンジ付/2口コンロ/都市ガス/バストイレ別/浴室乾燥機/温水洗浄便座/洗面所独立/洗面化粧台/シャワー付洗面台/24時間換気システム/バルコニー/フローリング/室内洗濯置/クロゼット/シューズボックス/BS・CS/ネット使用料不要/TVインターホン/保証人不要/初期費用カード決済可/エアコン/眺望良好 |
|---|
| 備考 | 分譲賃貸マンション情報が豊富なリガール |
|---|
| 取引態様 | 媒介 |
|---|
| 情報登録日 | 2024年09月28日 |
|---|
| 情報更新日 | 2024年09月28日 |
|---|


















