- HOME
- マンションギャラリー一覧
- ウェルスクエア豊島千川
ウェルスクエア豊島千川
【 マンション 】【仲介手数料無料】初期費用のクレジットカード決済が可能です
| 最寄駅 | 所在地 | 間取り | 面積 | 築年月 |
|---|---|---|---|---|
有楽町線・千川駅 徒歩 7分 | 東京都豊島区千早2-33-20 | 1 LDK | 35.6㎡ | 2020年09月 |
この物件の募集は終了しています
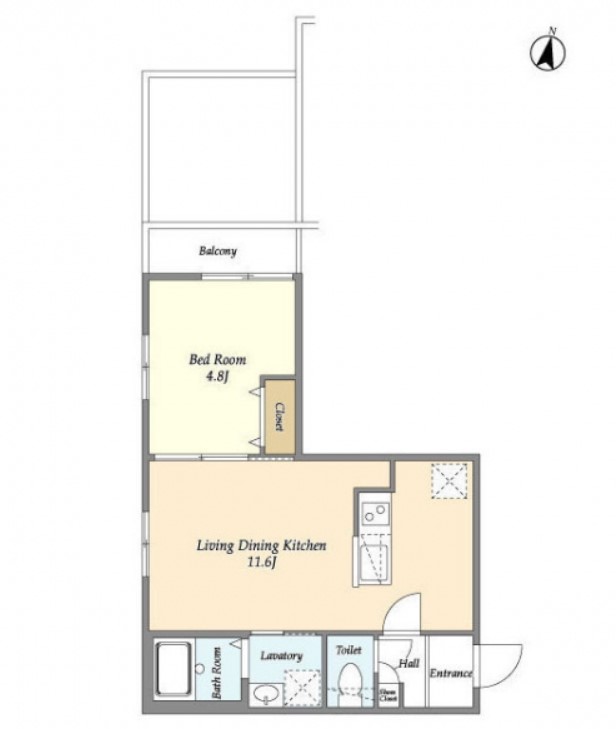
上階無し、二面採光の1LDKは2口ガスのカウンターキッチンや追い炊き、浴室乾燥機、独立洗面台、温水洗浄便座等の設備が充実。インターネットが無料で利用可能、宅配ボックスやゴミ置場等の共用設備も充実。
物件写真・間取り
物件概要
| 物件名 | ウェルスクエア豊島千川 |
|---|
| 交通機関 | 有楽町線・千川駅 徒歩 7分 西武池袋線・東長崎駅 徒歩 14分 副都心線・要町駅 徒歩 14分 |
|---|
| 間取り詳細 | LDK:11.6畳 洋室:4.8畳 |
|---|
| 建物構造 | 鉄骨造 |
|---|
| 所在階 / 階数 | 3階/3階建 |
|---|
| 主要採光面 | 西側 |
|---|
| 契約期間 | 2年 |
|---|
| 引渡 | 相談 |
|---|
| 現況 | 居住中 |
|---|
| 設備・条件 | 宅配ボックス/敷地内ごみ置き場/駐輪場/角住戸/2面採光/オートロック/防犯カメラ/システムキッチン/対面式キッチン/ガスレンジ付/2口コンロ/都市ガス/バストイレ別/追焚機能浴室/浴室乾燥機/温水洗浄便座/洗面所独立/24時間換気システム/バルコニー/フローリング/全居室フローリング/室内洗濯置/クロゼット/シューズボックス/BS・CS/ネット使用料不要/TVインターホン/仲介手数料不要/保証人不要/初期費用カード決済可/エアコン/通風良好 |
|---|
| 備考 | 豊島区のお部屋探しはリガール株式会社にお任せください |
|---|
| 取引態様 | 媒介 |
|---|
| 情報登録日 | 2024年09月28日 |
|---|
| 情報更新日 | 2024年09月28日 |
|---|


















