- HOME
- マンションギャラリー一覧
- シティインデックス王子
シティインデックス王子
【 マンション 】【仲介手数料0.55ヶ月】初期費用のクレジットカード決済可能
| 最寄駅 | 所在地 | 間取り | 面積 | 築年月 |
|---|---|---|---|---|
京浜東北線・王子駅 徒歩 5分 | 東京都北区豊島1-2-3 | 1 LDK | 55.72㎡ | 2010年09月 |
この物件の募集は終了しています
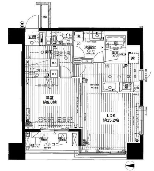
二面採光の角部屋はグリル付きの3口ガスカウンターキッチンや追い炊き、浴室乾燥機付きのお風呂、三面鏡付洗髪洗面化粧台、温水洗浄便座、エアコン等の設備に優れ、宅配ボックスやゴミ置場等の共用設備も充実
物件写真・間取り
物件概要
| 物件名 | シティインデックス王子 |
|---|
| 交通機関 | 京浜東北線・王子駅 徒歩 5分 都電荒川線・王子駅前駅 徒歩 5分 宇都宮線・尾久駅 徒歩 22分 |
|---|
| 間取り詳細 | LDK:15.2畳 洋室:8畳 |
|---|
| 建物構造 | SRC |
|---|
| 所在階 / 階数 | 6階/15階建 |
|---|
| 主要採光面 | 西側 |
|---|
| 契約期間 | 2年 |
|---|
| 引渡 | 即入居 |
|---|
| 現況 | 空 |
|---|
| 設備・条件 | 分譲賃貸/エレベーター/24時間ゴミ出し可/宅配ボックス/敷地内ごみ置き場/駐輪場/角住戸/2面採光/オートロック/ダブルロックキー/ディンプルキー/防犯カメラ/LDK15畳以上/全居室6畳以上/システムキッチン/対面式キッチン/ガスレンジ付/3口以上コンロ/グリル付/都市ガス/バストイレ別/オートバス/追焚機能浴室/浴室乾燥機/温水洗浄便座/洗面所独立/三面鏡付洗面化粧台/シャワー付洗面台/24時間換気システム/バルコニー/フローリング/全居室フローリング/室内洗濯置/クロゼット/シューズボックス/BS・CS/CATV/TVインターホン/即入居可/保証人不要/初期費用カード決済可/エアコン/眺望良好/通風良好 |
|---|
| 備考 | 分譲賃貸マンション情報が豊富なリガール |
|---|
| 取引態様 | 媒介 |
|---|
| 情報登録日 | 2024年09月12日 |
|---|
| 情報更新日 | 2024年09月12日 |
|---|
















