- HOME
- マンションギャラリー一覧
- レグノ・フォレスタ
レグノ・フォレスタ
【 マンション 】【仲介手数料無料】初期費用のクレジットカード決済が可能です
| 最寄駅 | 所在地 | 間取り | 面積 | 築年月 |
|---|---|---|---|---|
東武東上線・ときわ台駅 徒歩 12分 | 東京都板橋区東新町1-43-5 | 1 LDK | 51.75㎡ | 2006年11月 |
この物件の募集は終了しています
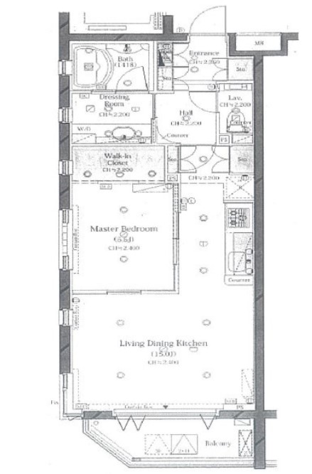
最上階、南向き、角部屋、二面採光の1LDKはウォークインクローゼットがあり収納豊富。グリル付きの3口システムキッチンや追い炊き、浴室乾燥機、独立洗面化粧台、温水洗浄便座等の設備に優れたデザイナーズ賃貸
物件写真・間取り
物件概要
| 物件名 | レグノ・フォレスタ |
|---|
| 交通機関 | 東武東上線・ときわ台駅 徒歩 12分 東武東上線・上板橋駅 徒歩 13分 有楽町線・小竹向原駅 徒歩 20分 |
|---|
| 建物構造 | RC |
|---|
| 所在階 / 階数 | 4階/4階建 |
|---|
| 主要採光面 | 南側 |
|---|
| 契約期間 | 2年 |
|---|
| 引渡 | 相談 |
|---|
| 現況 | 空 |
|---|
| 設備・条件 | デザイナーズ/外壁タイル張り/分譲賃貸/最上階/エレベーター/宅配ボックス/敷地内ごみ置き場/駐輪場/バイク置場/南向き/角住戸/2面採光/オートロック/防犯カメラ/LDK15畳以上/システムキッチン/ガスレンジ付/3口以上コンロ/グリル付/都市ガス/バストイレ別/追焚機能浴室/浴室乾燥機/温水洗浄便座/洗面所独立/三面鏡付洗面化粧台/24時間換気システム/バルコニー/フローリング/全居室フローリング/室内洗濯置/クロゼット/ウォークインクロゼット/シューズボックス/BS・CS/CATV/光ファイバー/TVインターホン/仲介手数料不要/保証人不要/初期費用カード決済可/エアコン/エアコン2台/エアコン全室/洗濯機/眺望良好/通風良好 |
|---|
| 備考 | デザイナーズマンション情報が豊富なリガール |
|---|
| 取引態様 | 媒介 |
|---|
| 情報登録日 | 2024年09月07日 |
|---|
| 情報更新日 | 2024年09月07日 |
|---|


















