- HOME
- マンションギャラリー一覧
- ヴァローレクオリタ池袋
ヴァローレクオリタ池袋
【 マンション 】初期費用のクレジットカード決済可能。ペットの飼育が可能です
| 最寄駅 | 所在地 | 間取り | 面積 | 築年月 |
|---|---|---|---|---|
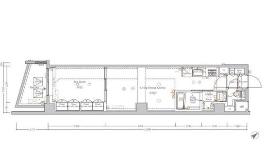
山手線・池袋駅 徒歩 9分 | 東京都豊島区池袋3-44-3 | 1 LDK | 43.52㎡ | 2013年06月 |
この物件の募集は終了しています
初期費用のクレジットカード決済可能。ペットの飼育が可能な南西向きの1LDKは3口ガスのシステムキッチンや独立洗面化粧台等の室内設備に優れ、宅配ボックス、ゴミ置場、バイク置場等の共用設備も充実の分譲賃貸
物件写真・間取り
物件概要
| 物件名 | ヴァローレクオリタ池袋 |
|---|
| 交通機関 | 山手線・池袋駅 徒歩 9分 有楽町線・要町駅 徒歩 11分 東武東上線・北池袋駅 徒歩 16分 |
|---|
| 間取り詳細 | LDK:12.8畳 洋室:6畳 |
|---|
| 建物構造 | RC |
|---|
| 所在階 / 階数 | 4階/6階建 |
|---|
| 主要採光面 | 南西側 |
|---|
| 引渡 | 相談 |
|---|
| 現況 | 居住中 |
|---|
| 設備・条件 | 分譲賃貸/エレベーター/24時間ゴミ出し可/宅配ボックス/敷地内ごみ置き場/駐輪場/バイク置場/南西向き/角住戸/オートロック/ダブルロックキー/ディンプルキー/防犯カメラ/システムキッチン/ガスレンジ付/3口以上コンロ/グリル付/都市ガス/バストイレ別/オートバス/追焚機能浴室/浴室乾燥機/温水洗浄便座/洗面所独立/シャワー付洗面台/24時間換気システム/バルコニー/南面バルコニー/フローリング/全居室フローリング/室内洗濯置/クロゼット/シューズボックス/BS・CS/光ファイバー/TVインターホン/ペット相談/保証人不要/初期費用カード決済可/エアコン |
|---|
| 備考 | 分譲マンション情報が豊富なリガール |
|---|
| 取引態様 | 媒介 |
|---|
| 情報登録日 | 2024年09月03日 |
|---|
| 情報更新日 | 2024年09月03日 |
|---|












