- HOME
- マンションギャラリー一覧
- パークハウス本駒込
パークハウス本駒込
【 マンション 】【再契約型定期借家】初期費用のクレジットカード決済が可能です
| 最寄駅 | 所在地 | 間取り | 面積 | 築年月 |
|---|---|---|---|---|
山手線・巣鴨駅 徒歩 6分 | 東京都文京区本駒込6-4-6 | 2 LDK | 60.23㎡ | 2005年12月 |
この物件の募集は終了しています
南西向き、角部屋、二面採光の風通しに優れた2LDKはリビングに床暖房が入り、グリル付3口システムキッチンや追い炊き、浴室乾燥機、独立洗面化粧台、温水洗浄便座等の設備が整い、インターネット利用料が無料。
物件写真・間取り
物件概要
| 物件名 | パークハウス本駒込 |
|---|
| 交通機関 | 山手線・巣鴨駅 徒歩 6分 三田線・千石駅 徒歩 4分 南北線・駒込駅 徒歩 10分 |
|---|
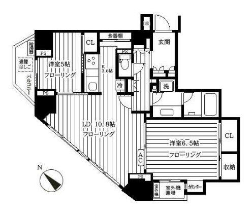
| 間取り詳細 | LDK:14.4畳 洋室:6.5畳、5畳 |
|---|
| 建物構造 | RC |
|---|
| 所在階 / 階数 | 6階/11階建 |
|---|
| 主要採光面 | 西側 |
|---|
| 契約期間 | 2年 |
|---|
| 引渡 | 即入居 |
|---|
| 現況 | 空 |
|---|
| 設備・条件 | 分譲賃貸/エレベーター/24時間ゴミ出し可/宅配ボックス/敷地内ごみ置き場/駐輪場/南西向き/角住戸/南面リビング/オートロック/防犯カメラ/システムキッチン/ガスレンジ付/3口以上コンロ/グリル付/都市ガス/バストイレ別/追焚機能浴室/浴室乾燥機/温水洗浄便座/洗面所独立/24時間換気システム/床暖房/バルコニー/全居室フローリング/室内洗濯置/クロゼット/シューズボックス/BS・CS/CATV/ネット使用料不要/光ファイバー/TVインターホン/保証人不要/初期費用カード決済可/エアコン/通風良好 |
|---|
| 備考 | 再契約型定期借家 |
|---|
| 取引態様 | 媒介 |
|---|
| 情報登録日 | 2024年07月12日 |
|---|
| 情報更新日 | 2024年07月12日 |
|---|













