- HOME
- マンションギャラリー一覧
- ヒューリック板橋
ヒューリック板橋
【 マンション 】初期費用のクレジットカード決済可能。インターネット利用料無料
| 最寄駅 | 所在地 | 間取り | 面積 | 築年月 |
|---|---|---|---|---|
三田線・板橋本町駅 徒歩 1分 | 東京都板橋区本町36-7 | 1 LDK | 37.41㎡ | 2018年01月 |
この物件の募集は終了しています
南向き、二面採光の角部屋はインターネット利用料が無料。グリル付きの2口システムキッチンや追い炊き、浴室乾燥機、温水洗浄便座等の設備に優れ、宅配ボックスや24時間利用可能なゴミ置場等の共用設備は充実。
物件写真・間取り
物件概要
| 物件名 | ヒューリック板橋 |
|---|
| 交通機関 | 三田線・板橋本町駅 徒歩 1分 東武東上線・中板橋駅 徒歩 17分 三田線・本蓮沼駅 徒歩 12分 |
|---|
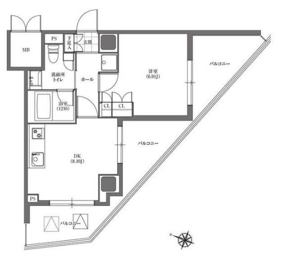
| 間取り詳細 | LDK:8.1畳 洋室:6.9畳 |
|---|
| 建物構造 | SRC |
|---|
| 所在階 / 階数 | 8階/11階建 |
|---|
| 主要採光面 | 南側 |
|---|
| 契約期間 | 2年 |
|---|
| 引渡 | 即入居 |
|---|
| 現況 | 空 |
|---|
| 設備・条件 | エレベーター/24時間ゴミ出し可/宅配ボックス/敷地内ごみ置き場/駐輪場/バイク置場/南向き/角住戸/2面採光/オートロック/防犯カメラ/全居室6畳以上/システムキッチン/ガスレンジ付/2口コンロ/グリル付/都市ガス/バストイレ別/オートバス/追焚機能浴室/浴室乾燥機/温水洗浄便座/洗面所独立/三面鏡付洗面化粧台/シャワー付洗面台/24時間換気システム/バルコニー/南面バルコニー/2面バルコニー/フローリング/全居室フローリング/室内洗濯置/クロゼット/シューズボックス/BS・CS/ネット使用料不要/TVインターホン/保証人不要/初期費用カード決済可/エアコン/眺望良好/通風良好/陽当り良好 |
|---|
| 備考 | 築浅物件情報が豊富なリガール |
|---|
| 取引態様 | 媒介 |
|---|
| 情報登録日 | 2024年06月26日 |
|---|
| 情報更新日 | 2024年06月26日 |
|---|



















