- HOME
- マンションギャラリー一覧
- オープンレジデンシア王子
オープンレジデンシア王子
【 マンション 】【仲介手数料0.55ヶ月】初期費用のクレジットカード決済可能
| 最寄駅 | 所在地 | 間取り | 面積 | 築年月 |
|---|---|---|---|---|
南北線・王子駅 徒歩 4分 | 東京都北区王子2-26-3 | 1 LDK | 37.38㎡ | 2018年11月 |
この物件の募集は終了しています
二面バルコニーが広がる角部屋は食洗器やグリル付カウンターキッチン、ミストサウナや追炊き、浴室乾燥機付きのお風呂、独立洗面化粧台等の設備に優れ、24時間利用可能なゴミ置場、宅配ボックス等の共用部も充実
物件写真・間取り
物件概要
| 物件名 | オープンレジデンシア王子 |
|---|
| 交通機関 | 南北線・王子駅 徒歩 4分 南北線・王子神谷駅 徒歩 11分 都電荒川線・王子駅前駅 徒歩 8分 |
|---|
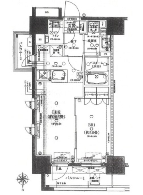
| 間取り詳細 | LDK:10.3畳 洋室:5畳 |
|---|
| 建物構造 | RC |
|---|
| 所在階 / 階数 | 4階/10階建 |
|---|
| 主要採光面 | 北側 |
|---|
| 契約期間 | 2年 |
|---|
| 引渡 | 相談 |
|---|
| 現況 | 居住中 |
|---|
| 設備・条件 | 分譲賃貸/エレベーター/24時間ゴミ出し可/宅配ボックス/敷地内ごみ置き場/シャッター車庫/駐輪場/角住戸/2面採光/オートロック/ダブルロックキー/ディンプルキー/防犯カメラ/システムキッチン/対面式キッチン/ガスレンジ付/2口コンロ/グリル付/食器洗乾燥機/都市ガス/バストイレ別/オートバス/追焚機能浴室/浴室乾燥機/ミストサウナ/温水洗浄便座/洗面所独立/24時間換気システム/床暖房/バルコニー/2面バルコニー/フローリング/全居室フローリング/室内洗濯置/クロゼット/シューズボックス/BS・CS/CATV/ネット使用料不要/光ファイバー/TVインターホン/保証人不要/初期費用カード決済可/エアコン/通風良好 |
|---|
| 備考 | 分譲マンション情報が豊富なリガール |
|---|
| 取引態様 | 媒介 |
|---|
| 情報登録日 | 2024年05月23日 |
|---|
| 情報更新日 | 2024年05月23日 |
|---|

























