- HOME
- マンションギャラリー一覧
- ヘリテージ椎名町
ヘリテージ椎名町
【 マンション 】床暖房等の設備が充実。初期費用のクレジットカード決済が可能
| 最寄駅 | 所在地 | 間取り | 面積 | 築年月 |
|---|---|---|---|---|
西武池袋線・椎名町駅 徒歩 8分 | 東京都豊島区長崎2-29-18 | 1 LDK | 40.02㎡ | 2014年07月 |
この物件の募集は終了しています
| 最上階、角部屋、二面採光の1LDKはリビングの床暖房やグリル付きのIH3口カウンターキッチン、浴室乾燥機、三面鏡付洗髪洗面化粧台等の設備が充実。宅配ボックスやゴミ置場、オートロック等の共用設備も豊富 |
物件写真・間取り
物件概要
| 物件名 | ヘリテージ椎名町 |
|---|
| 交通機関 | 西武池袋線・椎名町駅 徒歩 8分 有楽町線・要町駅 徒歩 10分 副都心線・千川駅 徒歩 12分 |
|---|
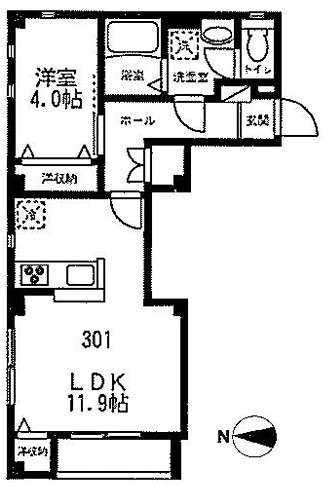
| 間取り詳細 | LDK:11.9畳 洋室:4畳 |
|---|
| 建物構造 | 鉄骨造 |
|---|
| 所在階 / 階数 | 3階/3階建 |
|---|
| 主要採光面 | 西側 |
|---|
| 契約期間 | 2年 |
|---|
| 引渡 | 相談 |
|---|
| 現況 | 空 |
|---|
| 設備・条件 | 最上階/宅配ボックス/敷地内ごみ置き場/駐輪場/角住戸/2面採光/オートロック/セキュリティ会社加入済/システムキッチン/対面式キッチン/3口以上コンロ/IHクッキングヒーター/グリル付/バストイレ別/浴室乾燥機/温水洗浄便座/洗面所独立/三面鏡付洗面化粧台/シャワー付洗面台/24時間換気システム/床暖房/オール電化/バルコニー/フローリング/全居室フローリング/防犯シャッター/複層ガラス/室内洗濯置/室内物干機/クロゼット/シューズボックス/BS・CS/光ファイバー/TVインターホン/保証人不要/初期費用カード決済可/エアコン/通風良好 |
|---|
| 備考 | 豊島区のお部屋探しはリガールにお任せください |
|---|
| 取引態様 | 媒介 |
|---|
| 情報登録日 | 2024年04月21日 |
|---|
| 情報更新日 | 2024年04月21日 |
|---|


















