- HOME
- マンションギャラリー一覧
- クレイシア赤羽
クレイシア赤羽
【
マンション
】初期費用のクレジットカード決済可能。インターネット利用料無料
| 最寄駅 | 所在地 | 間取り | 面積 | 築年月 |
|---|---|---|---|---|
埼京線・赤羽駅 徒歩 6分 | 東京都北区赤羽2-49-8 | 1 LDK | 32.17㎡ | 2020年04月 |
この物件の募集は終了しています
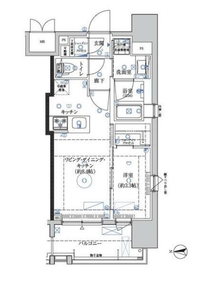
角部屋、二面採光の1LDKはペットの飼育が可能、インターネットが無料で利用可能です。グリル付3口カウンターキッチンや追い炊き、浴室乾燥機、三面鏡付独立洗面台、ウォークインクローゼット等の設備も充実
物件写真・間取り
物件概要
| 物件名 | クレイシア赤羽 |
|---|
| 交通機関 | 埼京線・赤羽駅 徒歩 6分 南北線・赤羽岩淵駅 徒歩 3分 南北線・志茂駅 徒歩 16分 |
|---|
| 間取り詳細 | LDK:8.4畳 洋室:3.3畳 |
|---|
| 建物構造 | RC |
|---|
| 所在階 / 階数 | 6階/15階建 |
|---|
| 主要採光面 | 西側 |
|---|
| 契約期間 | 2年 |
|---|
| 引渡 | 相談 |
|---|
| 現況 | 居住中 |
|---|
| 設備・条件 | 分譲賃貸/高層階/エレベーター/24時間ゴミ出し可/宅配ボックス/敷地内ごみ置き場/角住戸/2面採光/オートロック/ダブルロックキー/ディンプルキー/防犯カメラ/24時間緊急通報システム/システムキッチン/対面式キッチン/ガスレンジ付/3口以上コンロ/グリル付/都市ガス/バストイレ別/オートバス/追焚機能浴室/浴室乾燥機/温水洗浄便座/洗面所独立/三面鏡付洗面化粧台/24時間換気システム/バルコニー/フローリング/全居室フローリング/室内洗濯置/クロゼット/ウォークインクロゼット/シューズボックス/シューズWIC/ネット使用料不要/TVインターホン/ペット相談/保証人不要/初期費用カード決済可/エアコン/通風良好 |
|---|
| 備考 | 分譲賃貸マンション情報が豊富なリガール |
|---|
| 取引態様 | 媒介 |
|---|
| 情報登録日 | 2024年04月18日 |
|---|
| 情報更新日 | 2024年04月18日 |
|---|

















