- HOME
- マンションギャラリー一覧
- ステージグランデ神楽坂
ステージグランデ神楽坂
【 マンション 】インターネット利用料無料、初期費用のクレジットカード決済可能
| 最寄駅 | 所在地 | 間取り | 面積 | 築年月 |
|---|---|---|---|---|
有楽町線・江戸川橋駅 徒歩 3分 | 東京都新宿区改代町21-2 | 1 K | 41.86㎡ | 2011年08月 |
この物件の募集は終了しています
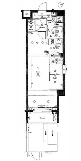
角部屋、二面採光の風通しに優れた室内はインターネットが無料で楽しめます。2口ガスのシステムキッチンや独立洗面台、浴室乾燥機、温水洗浄便座等の水回りの設備に優れ、専用庭にバイクや自転車を駐輪可能です。
物件写真・間取り
物件概要
| 物件名 | ステージグランデ神楽坂 |
|---|
| 交通機関 | 有楽町線・江戸川橋駅 徒歩 3分 東西線・神楽坂駅 徒歩 6分 大江戸線・牛込神楽坂駅 徒歩 12分 |
|---|
| 建物構造 | RC |
|---|
| 所在階 / 階数 | 1階/8階建 |
|---|
| 主要採光面 | 東側 |
|---|
| 契約期間 | 2年 |
|---|
| 引渡 | 相談 |
|---|
| 現況 | 居住中 |
|---|
| 設備・条件 | 分譲賃貸/エレベーター/24時間ゴミ出し可/宅配ボックス/敷地内ごみ置き場/駐輪場/バイク置場/角住戸/2面採光/専用庭/オートロック/防犯カメラ/全居室洋室/システムキッチン/ガスレンジ付/2口コンロ/都市ガス/バストイレ別/浴室乾燥機/温水洗浄便座/洗面所独立/洗面化粧台/24時間換気システム/バルコニー/テラス/フローリング/全居室フローリング/室内洗濯置/クロゼット/シューズボックス/BS・CS/ネット使用料不要/TVインターホン/保証人不要/初期費用カード決済可/エアコン/通風良好 |
|---|
| 備考 | 分譲賃貸マンション情報が豊富なリガール |
|---|
| 取引態様 | 媒介 |
|---|
| 情報登録日 | 2024年04月11日 |
|---|
| 情報更新日 | 2024年04月11日 |
|---|






