- HOME
- マンションギャラリー一覧
- サードダウン
サードダウン
【 アパート 】【仲介手数料無料】初期費用のクレジットカード決済が可能です
| 最寄駅 | 所在地 | 間取り | 面積 | 築年月 |
|---|---|---|---|---|
東武東上線・大山駅 徒歩 12分 | 東京都板橋区大谷口上町35-5 | 2 DK | 48.31㎡ | 2020年10月 |
この物件の募集は終了しています
【仲介手数料、敷金、礼金、インターネット利用料無料】角部屋、複数面採光の2DKは2口ガスのシステムキッチンや追い炊き、浴室乾燥機、独立洗面台、温水洗浄便座、ウォークインクローゼット等の設備が充実。
物件写真・間取り
物件概要
| 物件名 | サードダウン |
|---|
| 交通機関 | 東武東上線・大山駅 徒歩 12分 有楽町線・千川駅 徒歩 18分 東武東上線・中板橋駅 徒歩 16分 |
|---|
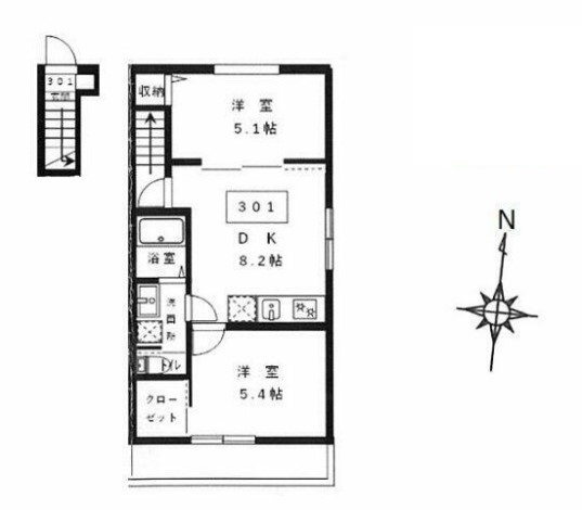
| 間取り詳細 | DK:8.2畳 洋室:5.4畳、5.1畳 |
|---|
| 建物構造 | 木造 |
|---|
| 所在階 / 階数 | 3階/3階建 |
|---|
| 主要採光面 | 東側 |
|---|
| 契約期間 | 2年 |
|---|
| 引渡 | 相談 |
|---|
| 現況 | 居住中 |
|---|
| 設備・条件 | 最上階/宅配ボックス/敷地内ごみ置き場/角住戸/2面採光/オートロック/ディンプルキー/防犯カメラ/システムキッチン/ガスレンジ付/2口コンロ/都市ガス/バストイレ別/オートバス/追焚機能浴室/浴室乾燥機/温水洗浄便座/洗面所独立/24時間換気システム/バルコニー/南面バルコニー/フローリング/全居室フローリング/室内洗濯置/クロゼット/ウォークインクロゼット/シューズボックス/ネット使用料不要/TVインターホン/保証人不要/初期費用カード決済可/エアコン/エアコン2台/通風良好 |
|---|
| 備考 | 初期安物件情報が豊富なリガール |
|---|
| 取引態様 | 媒介 |
|---|
| 情報登録日 | 2024年03月23日 |
|---|
| 情報更新日 | 2024年03月23日 |
|---|

















