- HOME
- マンションギャラリー一覧
- 小田急コアロード目白
小田急コアロード目白
【 マンション 】初期費用のクレジットカード決済可能。独立洗面台等の設備が充実
| 最寄駅 | 所在地 | 間取り | 面積 | 築年月 |
|---|---|---|---|---|
山手線・高田馬場駅 徒歩 6分 | 東京都豊島区高田3-30-17 | 1 R | 31.11㎡ | 2004年01月 |
この物件の募集は終了しています
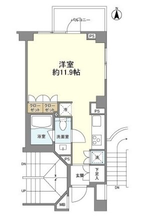
角部屋、二面採光の室内はグリル付きの3口ガスシステムキッチンや独立洗面台、タンクレストイレ、浴室乾燥機等の設備に優れ、宅配ボックスやエレベーター、モニター付オートロック等の共用設備も充実の分譲賃貸
物件写真・間取り
物件概要
| 物件名 | 小田急コアロード目白 |
|---|
| 交通機関 | 山手線・高田馬場駅 徒歩 6分 山手線・目白駅 徒歩 8分 都電荒川線・学習院下駅 徒歩 10分 |
|---|
| 間取り詳細 | 11.9畳 |
|---|
| 建物構造 | RC |
|---|
| 所在階 / 階数 | 2階/6階建 |
|---|
| 主要採光面 | 北側 |
|---|
| 契約期間 | 2年 |
|---|
| 引渡 | 即入居 |
|---|
| 現況 | 空 |
|---|
| 設備・条件 | 分譲賃貸/エレベーター/24時間ゴミ出し可/宅配ボックス/敷地内ごみ置き場/角住戸/2面採光/オートロック/ダブルロックキー/ディンプルキー/防犯カメラ/システムキッチン/ガスレンジ付/3口以上コンロ/グリル付/都市ガス/バストイレ別/オートバス/追焚機能浴室/浴室乾燥機/温水洗浄便座/洗面所独立/24時間換気システム/バルコニー/フローリング/室内洗濯置/クロゼット/シューズボックス/光ファイバー/TVインターホン/即入居可/保証人不要/エアコン/通風良好 |
|---|
| 備考 | 分譲マンション情報が豊富なリガール |
|---|
| 取引態様 | 媒介 |
|---|
| 情報登録日 | 2024年03月11日 |
|---|
| 情報更新日 | 2024年03月11日 |
|---|












