- HOME
- マンションギャラリー一覧
- WOODEN BELL
WOODEN BELL
【 マンション 】初期費用のクレジットカード決済可能。ペット可、楽器相談可
| 最寄駅 | 所在地 | 間取り | 面積 | 築年月 |
|---|---|---|---|---|
南北線・本駒込駅 徒歩 7分 | 東京都文京区本駒込1-11-10 | 3 LDK | 119.2㎡ | 1986年11月 |
この物件の募集は終了しています
2021年12月フルリフォーム済みの3LDKはグリル付きの3口カウンターキッチンや追い炊き、浴室乾燥機、三面鏡付独立洗面台等の設備が充実。専用庭があるマンションはペットの飼育、楽器の演奏も可能です。
物件写真・間取り
物件概要
| 物件名 | WOODEN BELL |
|---|
| 交通機関 | 南北線・本駒込駅 徒歩 7分 三田線・白山駅 徒歩 7分 山手線・巣鴨駅 徒歩 18分 |
|---|
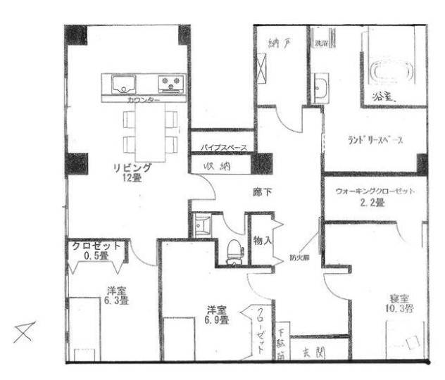
| 間取り詳細 | LDK:12畳 洋室:10.3畳、6.9畳、6.3畳 |
|---|
| 建物構造 | RC |
|---|
| 所在階 / 階数 | 1階/3階建 |
|---|
| 主要採光面 | 南西側 |
|---|
| 駐車場 | 有 |
|---|
| 駐車場料金 | 38,500円 |
|---|
| 契約期間 | 2年 |
|---|
| 引渡 | 即入居 |
|---|
| 現況 | 空 |
|---|
| 設備・条件 | 平面駐車場/駐輪場/南西向き/専用庭/ディンプルキー/LDK12畳以上/システムキッチン/対面式キッチン/ガスレンジ付/3口以上コンロ/グリル付/都市ガス/バストイレ別/オートバス/追焚機能浴室/浴室乾燥機/温水洗浄便座/洗面所独立/三面鏡付洗面化粧台/24時間換気システム/テラス/フローリング/全居室フローリング/室内洗濯置/室内物干機/クロゼット/ウォークインクロゼット/シューズボックス/納戸/光ファイバー/TVインターホン/リノベーション/即入居可/ペット相談/事務所相談/楽器相談/保証人不要/初期費用カード決済可/エアコン |
|---|
| 備考 | リノベーション済み物件情報が豊富なリガール |
|---|
| 取引態様 | 媒介 |
|---|
| 情報登録日 | 2024年02月29日 |
|---|
| 情報更新日 | 2024年02月29日 |
|---|



















