- HOME
- マンションギャラリー一覧
- ラグゼナ平和台
ラグゼナ平和台
【 マンション 】初期費用のクレジットカード決済可能。小型犬、猫2匹迄飼育可能
| 最寄駅 | 所在地 | 間取り | 面積 | 築年月 |
|---|---|---|---|---|
有楽町線・平和台駅 徒歩 6分 | 東京都練馬区平和台4-19-10 | 2 LDK | 62.91㎡ | 2019年03月 |
この物件の募集は終了しています
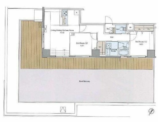
L字型ルーフバルコニーが広がる角部屋の2LDKは小型犬、猫の飼育が2匹迄可能。グリル付3口ガスのカウンターキッチンや追い炊き、浴室乾燥機、三面鏡付独立洗面化粧台、ウォークインクローゼット等の設備が充実
物件写真・間取り
物件概要
| 物件名 | ラグゼナ平和台 |
|---|
| 交通機関 | 有楽町線・平和台駅 徒歩 6分 東武東上線・東武練馬駅 徒歩 17分 副都心線・氷川台駅 徒歩 19分 |
|---|
| 建物構造 | RC |
|---|
| 所在階 / 階数 | 8階/9階建 |
|---|
| 主要採光面 | 北西側 |
|---|
| 契約期間 | 2年 |
|---|
| 引渡 | 相談 |
|---|
| 現況 | 居住中 |
|---|
| 設備・条件 | エレベーター2基/ペット専用設備/24時間ゴミ出し可/宅配ボックス/敷地内ごみ置き場/駐輪場/バイク置場/角住戸/2面採光/オートロック/ダブルロックキー/ディンプルキー/防犯カメラ/LDK12畳以上/全居室6畳以上/システムキッチン/対面式キッチン/ガスレンジ付/3口以上コンロ/グリル付/都市ガス/バストイレ別/オートバス/追焚機能浴室/浴室乾燥機/温水洗浄便座/洗面所独立/三面鏡付洗面化粧台/シャワー付洗面台/24時間換気システム/バルコニー/ルーフバルコニー/L字型バルコニー/フローリング/全居室フローリング/室内洗濯置/クロゼット/ウォークインクロゼット/シューズボックス/ネット使用料不要/TVインターホン/ペット相談/保証人不要/初期費用カード決済可/エアコン/眺望良好/通風良好 |
|---|
| 備考 | ペット可物件情報が豊富なリガール |
|---|
| 取引態様 | 媒介 |
|---|
| 情報登録日 | 2024年02月19日 |
|---|
| 情報更新日 | 2024年02月19日 |
|---|
















