- HOME
- マンションギャラリー一覧
- ミハス池袋
ミハス池袋
【 マンション 】インターネット利用料無料、初期費用のクレジットカード決済可能
| 最寄駅 | 所在地 | 間取り | 面積 | 築年月 |
|---|---|---|---|---|
山手線・池袋駅 徒歩 15分 | 東京都豊島区上池袋2-44-2 | 1 LDK | 40.42㎡ | 2020年10月 |
この物件の募集は終了しています
南東向きの1LDKはインターネット利用料が無料(Wifi付)。2口ガスのシステムキッチンや追い炊き、浴室乾燥機付きのお風呂、シャンプードレッサー、シャワートイレ、エアコン全室等の設備が充実してます。
物件写真・間取り
物件概要
| 物件名 | ミハス池袋 |
|---|
| 交通機関 | 山手線・池袋駅 徒歩 15分 東武東上線・北池袋駅 徒歩 7分 埼京線・板橋駅 徒歩 13分 |
|---|
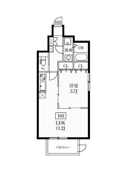
| 間取り詳細 | LDK:11.2畳 洋室:5.7畳 |
|---|
| 建物構造 | 鉄骨造 |
|---|
| 所在階 / 階数 | 1階/3階建 |
|---|
| 主要採光面 | 南東側 |
|---|
| 契約期間 | 2年 |
|---|
| 引渡 | 相談 |
|---|
| 現況 | 居住中 |
|---|
| 設備・条件 | 宅配ボックス/駐輪場/東南向き/角住戸/2面採光/南面リビング/ダブルロックキー/システムキッチン/ガスレンジ付/2口コンロ/バストイレ別/オートバス/追焚機能浴室/浴室乾燥機/温水洗浄便座/洗面所独立/シャワー付洗面台/24時間換気システム/バルコニー/南面バルコニー/フローリング/全居室フローリング/室内洗濯置/クロゼット/シューズボックス/BS・CS/ネット使用料不要/TVインターホン/保証人不要/初期費用カード決済可/エアコン/エアコン2台/エアコン全室/通風良好 |
|---|
| 備考 | 池袋のお部屋探しはリガールにお任せください! |
|---|
| 取引態様 | 媒介 |
|---|
| 情報登録日 | 2023年12月07日 |
|---|
| 情報更新日 | 2023年12月07日 |
|---|






