- HOME
- マンションギャラリー一覧
- セジョリ江戸川橋
セジョリ江戸川橋
【 マンション 】【仲介手数料0.55ヶ月】初期費用のクレジットカード決済可能
| 最寄駅 | 所在地 | 間取り | 面積 | 築年月 |
|---|---|---|---|---|
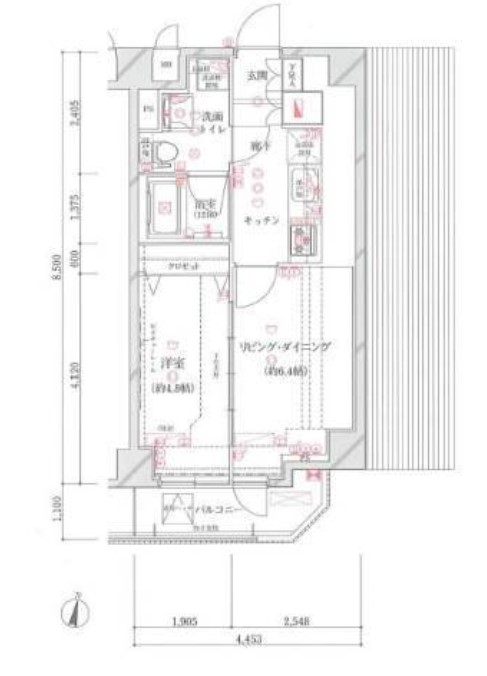
有楽町線・江戸川橋駅 徒歩 2分 | 東京都新宿区山吹町362 | 1 LDK | 37.34㎡ | 2012年04月 |
この物件の募集は終了しています
ペットの飼育が可能な南向きの角部屋はシステムキッチンや浴室乾燥機、独立洗面台、温水洗浄便座等の設備が充実。駐輪場、宅配ボックス、ゴミ置場、モニター付オートロック等の共用設備も充実の分譲マンションです
物件写真・間取り
物件概要
| 物件名 | セジョリ江戸川橋 |
|---|
| 交通機関 | 有楽町線・江戸川橋駅 徒歩 2分 東西線・神楽坂駅 徒歩 9分 大江戸線・牛込神楽坂駅 徒歩 17分 |
|---|
| 建物構造 | RC |
|---|
| 所在階 / 階数 | 10階/11階建 |
|---|
| 主要採光面 | 南側 |
|---|
| 契約期間 | 2年 |
|---|
| 引渡 | 即入居 |
|---|
| 現況 | 空 |
|---|
| 設備・条件 | 分譲賃貸/高層階/エレベーター/24時間ゴミ出し可/宅配ボックス/敷地内ごみ置き場/駐輪場/バイク置場/南向き/角住戸/オートロック/ダブルロックキー/ディンプルキー/防犯カメラ/システムキッチン/ガスレンジ付/グリル付/都市ガス/バストイレ別/浴室乾燥機/温水洗浄便座/洗面所独立/24時間換気システム/バルコニー/南面バルコニー/フローリング/全居室フローリング/室内洗濯置/クロゼット/シューズボックス/光ファイバー/TVインターホン/ペット相談/仲手0.55ヶ月/保証人不要/初期費用カード決済可/エアコン/眺望良好 |
|---|
| 備考 | 分譲賃貸マンション情報が豊富なリガール |
|---|
| 取引態様 | 媒介 |
|---|
| 情報登録日 | 2023年12月04日 |
|---|
| 情報更新日 | 2023年12月04日 |
|---|







