- HOME
- マンションギャラリー一覧
- ステージグランデ東武練馬
ステージグランデ東武練馬
【 マンション 】初期費用のクレジットカード決済可能。追い炊き等の設備が充実
| 最寄駅 | 所在地 | 間取り | 面積 | 築年月 |
|---|---|---|---|---|
東武東上線・東武練馬駅 徒歩 9分 | 東京都練馬区北町3-1-4 | 1 LDK | 40.96㎡ | 2022年04月 |
この物件の募集は終了しています
南向きの1LDKはインターネット利用料が無料。2口ガスのカウンターキッチンや追い炊き、浴室乾燥機、三面鏡付独立洗面化粧台、温水洗浄便座、エアコン等の設備に優れ、ウォークインクローゼットがあり収納豊富
物件写真・間取り
物件概要
| 物件名 | ステージグランデ東武練馬 |
|---|
| 交通機関 | 東武東上線・東武練馬駅 徒歩 9分 有楽町線・地下鉄赤塚駅 徒歩 13分 副都心線・平和台駅 徒歩 17分 |
|---|
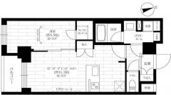
| 間取り詳細 | LDK:11.1畳 洋室:5.5畳 |
|---|
| 建物構造 | RC |
|---|
| 所在階 / 階数 | 2階/6階建 |
|---|
| 主要採光面 | 南側 |
|---|
| 契約期間 | 2年 |
|---|
| 引渡 | 即入居 |
|---|
| 現況 | 空 |
|---|
| 設備・条件 | 分譲賃貸/エレベーター/24時間ゴミ出し可/宅配ボックス/敷地内ごみ置き場/駐輪場/バイク置場/南向き/角住戸/南面リビング/オートロック/ダブルロックキー/ディンプルキー/防犯カメラ/システムキッチン/対面式キッチン/ガスレンジ付/2口コンロ/都市ガス/バストイレ別/オートバス/追焚機能浴室/浴室乾燥機/温水洗浄便座/洗面所独立/三面鏡付洗面化粧台/シャワー付洗面台/24時間換気システム/バルコニー/南面バルコニー/フローリング/全居室フローリング/室内洗濯置/クロゼット/ウォークインクロゼット/シューズボックス/BS・CS/ネット使用料不要/光ファイバー/TVインターホン/即入居可/保証人不要/初期費用カード決済可/エアコン |
|---|
| 備考 | 分譲賃貸マンション情報が豊富なリガール |
|---|
| 取引態様 | 媒介 |
|---|
| 情報登録日 | 2023年12月01日 |
|---|
| 情報更新日 | 2023年12月01日 |
|---|




















