- HOME
- マンションギャラリー一覧
- SYFORME TABATA
SYFORME TABATA
【 マンション 】仲介手数料、敷金、礼金、インターネット利用料不要の新築賃貸
| 最寄駅 | 所在地 | 間取り | 面積 | 築年月 |
|---|---|---|---|---|
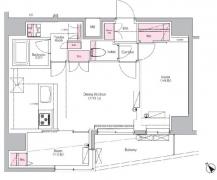
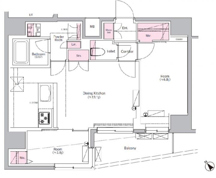
山手線・田端駅 徒歩 10分 | 東京都北区田端新町2-24 | 2 LDK | 56.14㎡ | 2023年12月 |
この物件の募集は終了しています
【仲介手数料、敷金、礼金不要。フリーレント】ペットの飼育が可能、インターネット利用料が無料(Wi-Fi対応)で楽しめる南西向きの2LDKはウォークインクローゼットやカウンターキッチン等の設備が充実。
物件写真・間取り
物件概要
| 物件名 | SYFORME TABATA |
|---|
| 交通機関 | 山手線・田端駅 徒歩 10分 京成本線・新三河島駅 徒歩 10分 千代田線・西日暮里駅 徒歩 13分 |
|---|
| 建物構造 | RC |
|---|
| 所在階 / 階数 | 14階/14階建 |
|---|
| 主要採光面 | 南西側 |
|---|
| 契約期間 | 2年 |
|---|
| 引渡 | 相談 |
|---|
| 現況 | 未完成 |
|---|
| 設備・条件 | 分譲賃貸/高層階/最上階/エレベーター/24時間ゴミ出し可/宅配ボックス/敷地内ごみ置き場/駐輪場/南西向き/南面リビング/オートロック/防犯カメラ/システムキッチン/対面式キッチン/ガスレンジ付/3口以上コンロ/グリル付/都市ガス/バストイレ別/浴室乾燥機/温水洗浄便座/洗面所独立/24時間換気システム/バルコニー/南面バルコニー/フローリング/全居室フローリング/室内洗濯置/クロゼット/ウォークインクロゼット/シューズボックス/ネット使用料不要/光ファイバー/TVインターホン/ペット相談/仲介手数料不要/保証人不要/初期費用カード決済可/エアコン/眺望良好/陽当り良好 |
|---|
| 備考 | 分譲賃貸マンション情報が豊富なリガール |
|---|
| 取引態様 | 媒介 |
|---|
| 情報登録日 | 2023年11月28日 |
|---|
| 情報更新日 | 2023年11月28日 |
|---|
























