- HOME
- マンションギャラリー一覧
- ライオンズ練馬アートレジデンス
ライオンズ練馬アートレジデンス
【 マンション 】初期費用のクレジットカード決済可能。床暖房等の設備が充実
| 最寄駅 | 所在地 | 間取り | 面積 | 築年月 |
|---|---|---|---|---|
大江戸線・練馬駅 徒歩 5分 | 東京都練馬区豊玉上2-25-14 | 1 DK | 32.21㎡ | 2009年01月 |
この物件の募集は終了しています
角部屋、二面採光の室内はダイニングの床暖房やグリル付きの2口ガスのシステムキッチン、追い炊きオートバス、浴室換気乾燥機、シャワートイレ、独立洗面化粧台等の設備に優れ、宅配ボックス等の共用設備も充実。
物件写真・間取り
物件概要
| 物件名 | ライオンズ練馬アートレジデンス |
|---|
| 交通機関 | 大江戸線・練馬駅 徒歩 5分 西武池袋線・桜台駅 徒歩 4分 西武有楽町線・新桜台駅 徒歩 15分 |
|---|
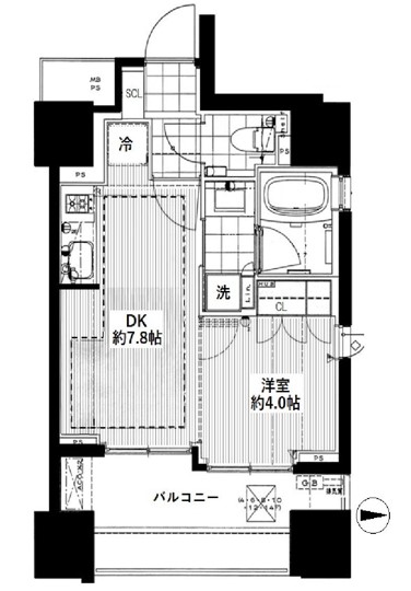
| 間取り詳細 | DK:7.8畳 洋室:4畳 |
|---|
| 建物構造 | RC |
|---|
| 所在階 / 階数 | 8階/14階建 |
|---|
| 主要採光面 | 東側 |
|---|
| 契約期間 | 2年 |
|---|
| 引渡 | 相談 |
|---|
| 現況 | 居住中 |
|---|
| 設備・条件 | 分譲賃貸/高層階/エレベーター/24時間ゴミ出し可/宅配ボックス/敷地内ごみ置き場/角住戸/2面採光/オートロック/ダブルロックキー/ディンプルキー/防犯カメラ/システムキッチン/ガスレンジ付/2口コンロ/グリル付/都市ガス/バストイレ別/オートバス/追焚機能浴室/浴室乾燥機/温水洗浄便座/洗面所独立/三面鏡付洗面化粧台/シャワー付洗面台/24時間換気システム/床暖房/バルコニー/フローリング/全居室フローリング/室内洗濯置/クロゼット/シューズボックス/光ファイバー/TVインターホン/保証人不要/初期費用カード決済可/エアコン/眺望良好/通風良好 |
|---|
| 備考 | 分譲賃貸マンション情報が豊富なリガール |
|---|
| 取引態様 | 媒介 |
|---|
| 情報登録日 | 2023年11月20日 |
|---|
| 情報更新日 | 2023年11月20日 |
|---|











