- HOME
- マンションギャラリー一覧
- SYFORME ITABASHI Ⅱ
SYFORME ITABASHI Ⅱ
【 マンション 】初期費用のクレジットカード決済可能。インターネット利用料無料
| 最寄駅 | 所在地 | 間取り | 面積 | 築年月 |
|---|---|---|---|---|
三田線・新板橋駅 徒歩 4分 | 東京都板橋区板橋4-10-2 | 1 LDK | 36.96㎡ | 2022年06月 |
この物件の募集は終了しています
南向きの角部屋はインターネットが無料で利用可能。グリル付き2口ガスのカウンターキッチンや追い炊き、浴室乾燥機、独立洗面化粧台、温水洗浄便座等の設備に優れ、ペットの飼育が可能な分譲賃貸マンションです。
物件写真・間取り
物件概要
| 物件名 | SYFORME ITABASHI Ⅱ |
|---|
| 交通機関 | 三田線・新板橋駅 徒歩 4分 東武東上線・下板橋駅 徒歩 7分 埼京線・板橋駅 徒歩 8分 |
|---|
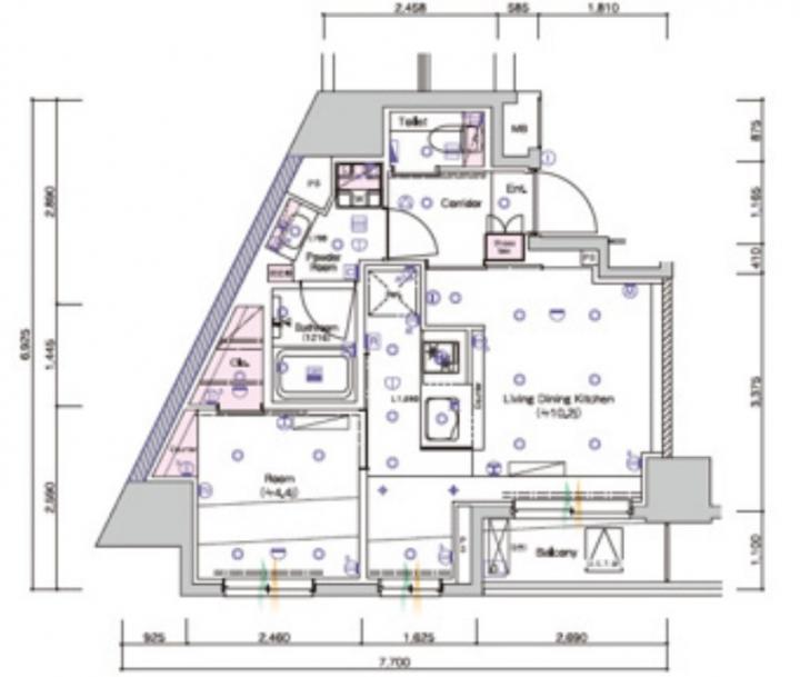
| 間取り詳細 | LDK:10.2畳 洋室:4.4畳 |
|---|
| 建物構造 | RC |
|---|
| 所在階 / 階数 | 7階/12階建 |
|---|
| 主要採光面 | 南西側 |
|---|
| 契約期間 | 2年 |
|---|
| 引渡 | 相談 |
|---|
| 現況 | 居住中 |
|---|
| 設備・条件 | 分譲賃貸/高層階/エレベーター/24時間ゴミ出し可/宅配ボックス/敷地内ごみ置き場/南向き/角住戸/オートロック/ダブルロックキー/ディンプルキー/防犯カメラ/システムキッチン/対面式キッチン/ガスレンジ付/2口コンロ/グリル付/都市ガス/バストイレ別/オートバス/追焚機能浴室/浴室乾燥機/温水洗浄便座/洗面所独立/24時間換気システム/バルコニー/南面バルコニー/フローリング/全居室フローリング/室内洗濯置/クロゼット/ウォークインクロゼット/シューズボックス/BS・CS/ネット使用料不要/TVインターホン/ペット相談/保証人不要/初期費用カード決済可/エアコン/眺望良好 |
|---|
| 備考 | 分譲賃貸マンション情報が豊富なリガール |
|---|
| 取引態様 | 媒介 |
|---|
| 情報登録日 | 2023年11月04日 |
|---|
| 情報更新日 | 2023年11月04日 |
|---|





















