- HOME
- マンションギャラリー一覧
- (仮)熊野町マンション
(仮)熊野町マンション
【 マンション 】初期費用のクレジットカード決済可能。インターネット利用料無料
| 最寄駅 | 所在地 | 間取り | 面積 | 築年月 |
|---|---|---|---|---|
東武東上線・大山駅 徒歩 9分 | 東京都板橋区熊野町44-2 | 2 LDK | 65.33㎡ | 2024年01月 |
この物件の募集は終了しています
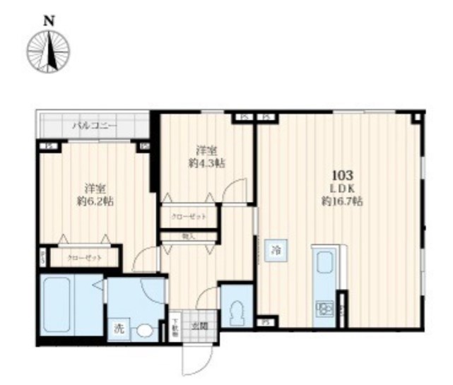
角部屋、二面採光の2LDKはインターネット利用料が無料。グリル付きのIH3口カウンターキッチンや追い炊き、浴室乾燥機、独立洗面台、温水洗浄便座等の室内設備や宅配ボックス、ゴミ置場等の共用設備も充実。
物件写真・間取り
物件概要
| 物件名 | (仮)熊野町マンション |
|---|
| 交通機関 | 東武東上線・大山駅 徒歩 9分 都営三田線・板橋区役所前駅 徒歩 15分 東武東上線・下板橋駅 徒歩 14分 |
|---|
| 建物構造 | PC |
|---|
| 所在階 / 階数 | 1階/4階建 |
|---|
| 主要採光面 | 北側 |
|---|
| 契約期間 | 2年 |
|---|
| 引渡 | 相談 |
|---|
| 現況 | 未完成 |
|---|
| 設備・条件 | 宅配ボックス/敷地内ごみ置き場/駐輪場/角住戸/2面採光/オートロック/ダブルロックキー/防犯カメラ/LDK15畳以上/システムキッチン/対面式キッチン/3口以上コンロ/IHクッキングヒーター/グリル付/都市ガス/バストイレ別/オートバス/追焚機能浴室/浴室乾燥機/温水洗浄便座/洗面所独立/24時間換気システム/バルコニー/フローリング/全居室フローリング/防犯シャッター/室内洗濯置/クロゼット/シューズボックス/ネット使用料不要/TVインターホン/保証人不要/初期費用カード決済可/エアコン/通風良好 |
|---|
| 備考 | 板橋区のお部屋探しはリガールにお任せ下さい。 |
|---|
| 取引態様 | 媒介 |
|---|
| 情報登録日 | 2023年10月11日 |
|---|
| 情報更新日 | 2023年10月11日 |
|---|






