- HOME
- マンションギャラリー一覧
- TRUST VALUE 東池袋
TRUST VALUE 東池袋
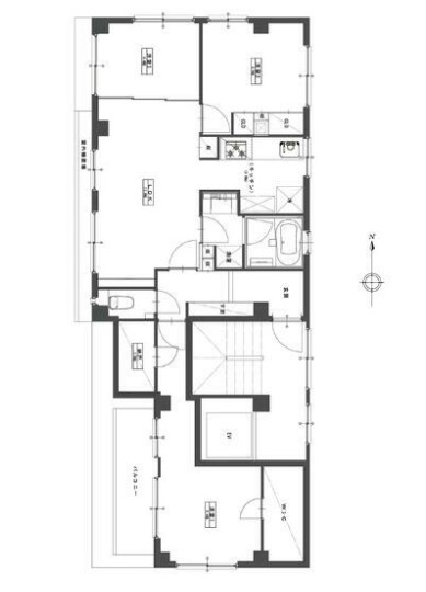
【 マンション 】2022年内外装リフォーム、最上階、角部屋の3SLDK
| 最寄駅 | 所在地 | 間取り | 面積 | 築年月 |
|---|---|---|---|---|
有楽町線・東池袋駅 徒歩 1分 | 東京都豊島区東池袋4-1-3 | 3 LDK | 75.2㎡ | 1990年01月 |
この物件の募集は終了しています
初期費用のクレジットカード決済可能。2022年に内外装リフォーム、宅配ボックスやエレベーター等の共用部充実のマンション。ウォークインクローゼットや納戸がある収納豊富な最上階、ワンフロアの3SLDK
物件写真・間取り
物件概要
| 物件名 | TRUST VALUE 東池袋 |
|---|
| 交通機関 | 有楽町線・東池袋駅 徒歩 1分 山手線・池袋駅 徒歩 11分 丸ノ内線・新大塚駅 徒歩 10分 |
|---|
| 建物構造 | 鉄骨造 |
|---|
| 所在階 / 階数 | 5階/5階建 |
|---|
| 主要採光面 | 西側 |
|---|
| 契約期間 | 2年 |
|---|
| 引渡 | 即入居 |
|---|
| 現況 | 空 |
|---|
| 設備・条件 | 1フロア1住戸/最上階/エレベーター/宅配ボックス/駐輪場/角住戸/2面採光/3面採光/LDK12畳以上/システムキッチン/ガスレンジ付/3口以上コンロ/グリル付/都市ガス/バストイレ別/追焚機能浴室/浴室乾燥機/温水洗浄便座/洗面所独立/24時間換気システム/バルコニー/フローリング/全居室フローリング/室内洗濯置/クロゼット/ウォークインクロゼット/シューズボックス/納戸/TVインターホン/内外装リフォーム済/リノベーション/即入居可/保証人不要/初期費用カード決済可/エアコン/通風良好 |
|---|
| 備考 | リノベーション物件情報が豊富なリガール |
|---|
| 取引態様 | 媒介 |
|---|
| 情報登録日 | 2023年10月02日 |
|---|
| 情報更新日 | 2023年10月02日 |
|---|











