- HOME
- マンションギャラリー一覧
- メトロステージ小日向
メトロステージ小日向
【 マンション 】初期費用のクレジットカード決済可能。追い炊き等の設備が充実
| 最寄駅 | 所在地 | 間取り | 面積 | 築年月 |
|---|---|---|---|---|
丸ノ内線・茗荷谷駅 徒歩 7分 | 東京都文京区小日向2-3-1 | 1 LDK | 42.37㎡ | 1999年01月 |
この物件の募集は終了しています
グリル付きの2口システムキッチンや追い炊き、浴室乾燥機付きのお風呂。三面鏡付独立洗面化粧台、エアコン2基等の室内設備に優れ、宅配ボックスやオートロック、無料で利用可能な駐輪場、ゴミ置場等の共用部も充実
物件写真・間取り
物件概要
| 物件名 | メトロステージ小日向 |
|---|
| 交通機関 | 丸ノ内線・茗荷谷駅 徒歩 7分 有楽町線・江戸川橋駅 徒歩 9分 東西線・神楽坂駅 徒歩 16分 |
|---|
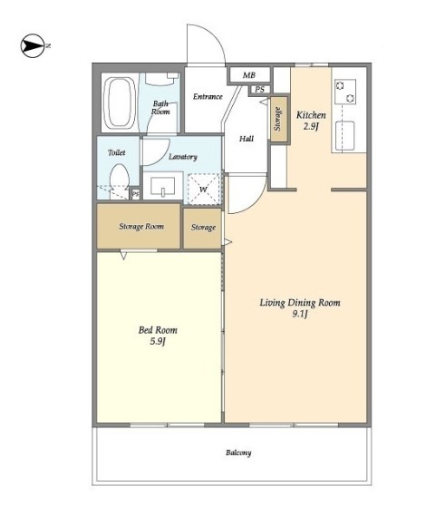
| 間取り詳細 | LDK:12畳 洋室:5.9畳 |
|---|
| 建物構造 | RC |
|---|
| 所在階 / 階数 | 3階/3階建 |
|---|
| 主要採光面 | 東側 |
|---|
| 契約期間 | 2年 |
|---|
| 引渡 | 相談 |
|---|
| 現況 | 居住中 |
|---|
| 設備・条件 | 最上階/宅配ボックス/敷地内ごみ置き場/駐輪場/オートロック/防犯カメラ/LDK12畳以上/システムキッチン/ガスレンジ付/2口コンロ/グリル付/都市ガス/バストイレ別/オートバス/追焚機能浴室/浴室乾燥機/洗面所独立/三面鏡付洗面化粧台/シャワー付洗面台/24時間換気システム/バルコニー/フローリング/全居室フローリング/室内洗濯置/クロゼット/シューズボックス/TVインターホン/保証人不要/初期費用カード決済可/エアコン/エアコン2台 |
|---|
| 備考 | 低層マンション情報が豊富 |
|---|
| 取引態様 | 媒介 |
|---|
| 情報登録日 | 2023年10月01日 |
|---|
| 情報更新日 | 2023年10月01日 |
|---|















