- HOME
- マンションギャラリー一覧
- シーズクロノス新宿
シーズクロノス新宿
【 マンション 】床暖房やグリル付きシステムキッチン、追い炊き等の設備が充実
| 最寄駅 | 所在地 | 間取り | 面積 | 築年月 |
|---|---|---|---|---|
山手線・新大久保駅 徒歩 5分 | 東京都新宿区百人町2-1-42 | 1 LDK | 43㎡ | 2004年02月 |
この物件の募集は終了しています
駐車場やバイク置場、駐輪場があり山手線新大久保駅徒歩5分の交通面に優れた分譲マンション。床暖房やグリル付3口カウンターキッチン、追い炊き、浴室乾燥機、独立洗面台、温水洗浄便座等の設備が充実してます。
物件写真・間取り
物件概要
| 物件名 | シーズクロノス新宿 |
|---|
| 交通機関 | 山手線・新大久保駅 徒歩 5分 中央線・大久保駅 徒歩 10分 副都心線・東新宿駅 徒歩 12分 |
|---|
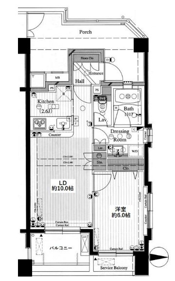
| 間取り詳細 | LDK:12.6畳 洋室:6畳 |
|---|
| 建物構造 | RC |
|---|
| 所在階 / 階数 | 2階/5階建 |
|---|
| 主要採光面 | 東側 |
|---|
| 契約期間 | 2年 |
|---|
| 引渡 | 即入居 |
|---|
| 現況 | 空 |
|---|
| 設備・条件 | 分譲賃貸/エレベーター/24時間ゴミ出し可/宅配ボックス/敷地内ごみ置き場/シャッター車庫/駐輪場/バイク置場/角住戸/2面採光/オートロック/防犯カメラ/LDK12畳以上/全居室洋室/全居室6畳以上/システムキッチン/対面式キッチン/3口以上コンロ/IHクッキングヒーター/グリル付/都市ガス/バストイレ別/オートバス/追焚機能浴室/浴室乾燥機/温水洗浄便座/洗面所独立/洗面化粧台/24時間換気システム/床暖房/バルコニー/フローリング/全居室フローリング/室内洗濯置/クロゼット/シューズボックス/光ファイバー/TVインターホン/保証人不要/初期費用カード決済可/エアコン/洗濯機/通風良好 |
|---|
| 備考 | 分譲賃貸マンション情報が豊富なリガール |
|---|
| 取引態様 | 媒介 |
|---|
| 情報登録日 | 2023年09月29日 |
|---|
| 情報更新日 | 2023年09月29日 |
|---|














