- HOME
- マンションギャラリー一覧
- シティタワー池袋
シティタワー池袋
【 マンション 】コンシェルジュサービスのある分譲タワーマンション
| 最寄駅 | 所在地 | 間取り | 面積 | 築年月 |
|---|---|---|---|---|
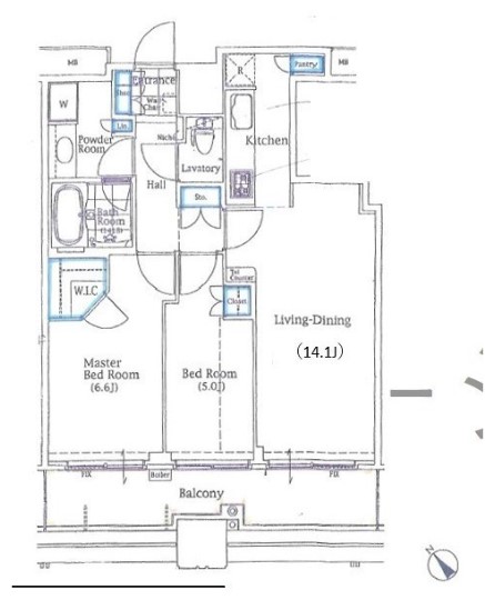
山手線・大塚駅 徒歩 10分 | 東京都豊島区東池袋2-38-4 | 2 LDK | 60.42㎡ | 2003年09月 |
この物件の募集は終了しています
コンシェルジュサービスやスカイラウンジのある分譲タワーマンション。南西向きの室内は食洗器付きの3口システムキッチンやリビングの床暖房、ウォークインクローゼット、追い炊き、独立洗面台等の設備が充実。
物件写真・間取り
物件概要
| 物件名 | シティタワー池袋 |
|---|
| 交通機関 | 山手線・大塚駅 徒歩 10分 山手線・池袋駅 徒歩 11分 有楽町線・東池袋駅 徒歩 10分 |
|---|
| 間取り詳細 | LDK:14.1畳 洋室:6.6畳、5畳 |
|---|
| 建物構造 | RC |
|---|
| 所在階 / 階数 | 19階/26階建 |
|---|
| 主要採光面 | 南西側 |
|---|
| 契約期間 | 2年 |
|---|
| 引渡 | 即入居 |
|---|
| 現況 | 空 |
|---|
| 設備・条件 | 分譲賃貸/高層階/エレベーター/エレベーター2基/24時間ゴミ出し可/宅配ボックス/フロントサービス/敷地内ごみ置き場/シャッター車庫/駐輪場/バイク置場/南西向き/南面リビング/オートロック/防犯カメラ/24時間有人管理/LDK12畳以上/システムキッチン/ガスレンジ付/3口以上コンロ/グリル付/食器洗乾燥機/都市ガス/バストイレ別/オートバス/追焚機能浴室/浴室乾燥機/温水洗浄便座/洗面所独立/三面鏡付洗面化粧台/24時間換気システム/床暖房/バルコニー/南面バルコニー/フローリング/全居室フローリング/室内洗濯置/クロゼット/ウォークインクロゼット/シューズボックス/BS・CS/CATV/光ファイバー/TVインターホン/即入居可/保証人不要/初期費用カード決済可/エアコン/眺望良好 |
|---|
| 備考 | タワーマンション情報が豊富なリガール |
|---|
| 取引態様 | 媒介 |
|---|
| 情報登録日 | 2023年08月10日 |
|---|
| 情報更新日 | 2023年08月10日 |
|---|


















