- HOME
- マンションギャラリー一覧
- イトーピア池袋メトロポリタン
イトーピア池袋メトロポリタン
【 マンション 】初期費用のクレジットカード決済可能。ペット可分譲マンション
| 最寄駅 | 所在地 | 間取り | 面積 | 築年月 |
|---|---|---|---|---|
山手線・池袋駅 徒歩 1分 | 東京都豊島区西池袋1-5-11 | 2 LDK | 66.35㎡ | 1999年03月 |
この物件の募集は終了しています
小型犬、猫の飼育が可能な二面バルコニーが広がる角部屋。3口システムキッチンや独立洗面化粧台、浴室乾燥機等の室内設備や宅配ボックス、ゴミ置場、駐輪場、オートロック等の共用設備も充実の分譲マンション
物件写真・間取り
物件概要
| 物件名 | イトーピア池袋メトロポリタン |
|---|
| 交通機関 | 山手線・池袋駅 徒歩 1分 山手線・目白駅 徒歩 10分 副都心線・雑司が谷駅 徒歩 14分 |
|---|
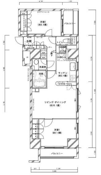
| 間取り詳細 | LDK:13.5畳 洋室:7畳、5.8畳 |
|---|
| 建物構造 | SRC |
|---|
| 所在階 / 階数 | 11階/14階建 |
|---|
| 契約期間 | 2年 |
|---|
| 引渡 | 相談 |
|---|
| 現況 | 居住中 |
|---|
| 設備・条件 | 分譲賃貸/高層階/エレベーター/24時間ゴミ出し可/宅配ボックス/敷地内ごみ置き場/角住戸/2面採光/オートロック/防犯カメラ/LDK12畳以上/システムキッチン/3口以上コンロ/グリル付/都市ガス/バストイレ別/オートバス/追焚機能浴室/浴室乾燥機/温水洗浄便座/洗面所独立/24時間換気システム/バルコニー/2面バルコニー/フローリング/全居室フローリング/室内洗濯置/クロゼット/シューズボックス/CATV/TVインターホン/ペット相談/保証人不要/初期費用カード決済可/エアコン/通風良好 |
|---|
| 備考 | 分譲賃貸マンション情報が豊富なリガール |
|---|
| 取引態様 | 媒介 |
|---|
| 情報登録日 | 2023年08月10日 |
|---|
| 情報更新日 | 2023年08月10日 |
|---|









