- HOME
- マンションギャラリー一覧
- メゾンサンシャイン
メゾンサンシャイン
【 マンション 】初期費用のクレジットカード決済可能。リノベーションマンション
| 最寄駅 | 所在地 | 間取り | 面積 | 築年月 |
|---|---|---|---|---|
山手線・池袋駅 徒歩 10分 | 東京都豊島区東池袋3-1-4 | 2 LDK | 55.89㎡ | 1978年10月 |
この物件の募集は終了しています
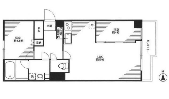
2023年6月にリノベーションされた東向きの2LDKは食洗器付きのIHシステムキッチンや洗髪洗面化粧台、温水洗浄便座、浴室乾燥機等の室内設備やエレベーター複数基、オートロック等の共用設備も充実してます
物件写真・間取り
物件概要
| 物件名 | メゾンサンシャイン |
|---|
| 交通機関 | 山手線・池袋駅 徒歩 10分 有楽町線・東池袋駅 徒歩 4分 山手線・大塚駅 徒歩 12分 |
|---|
| 間取り詳細 | LDK:12畳 洋室:4.5畳、4畳 |
|---|
| 建物構造 | RC |
|---|
| 所在階 / 階数 | 10階/12階建 |
|---|
| 主要採光面 | 東側 |
|---|
| 契約期間 | 2年 |
|---|
| 引渡 | 相談 |
|---|
| 現況 | 空 |
|---|
| 設備・条件 | 分譲賃貸/高層階/エレベーター/敷地内ごみ置き場/駐輪場/オートロック/防犯カメラ/全居室洋室/システムキッチン/2口コンロ/IHクッキングヒーター/食器洗乾燥機/都市ガス/バストイレ別/オートバス/追焚機能浴室/浴室乾燥機/温水洗浄便座/洗面所独立/三面鏡付洗面化粧台/シャワー付洗面台/24時間換気システム/バルコニー/フローリング/全居室フローリング/室内洗濯置/クロゼット/シューズボックス/リノベーション/即入居可/事務所相談/保証人不要/初期費用カード決済可/エアコン/エアコン2台/眺望良好 |
|---|
| 備考 | リノベーション物件情報が豊富なリガール |
|---|
| 取引態様 | 媒介 |
|---|
| 情報登録日 | 2023年07月30日 |
|---|
| 情報更新日 | 2023年07月30日 |
|---|




















